検索結果:

※建築地域および技術改良等により、
プラン・仕様等が変更となる場合がございます。

検索結果はありません。

チェック項目を変更のうえ、再度お試しください。

  • 間取り 001
    ELAVie
    • ~3LDK
    • 94.83m2(28.7坪)
    • 13,500
      7,250
    • 1F
    • 2F

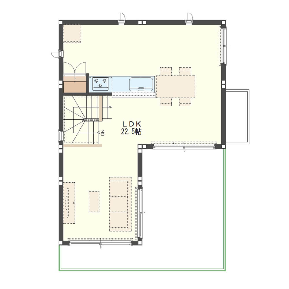
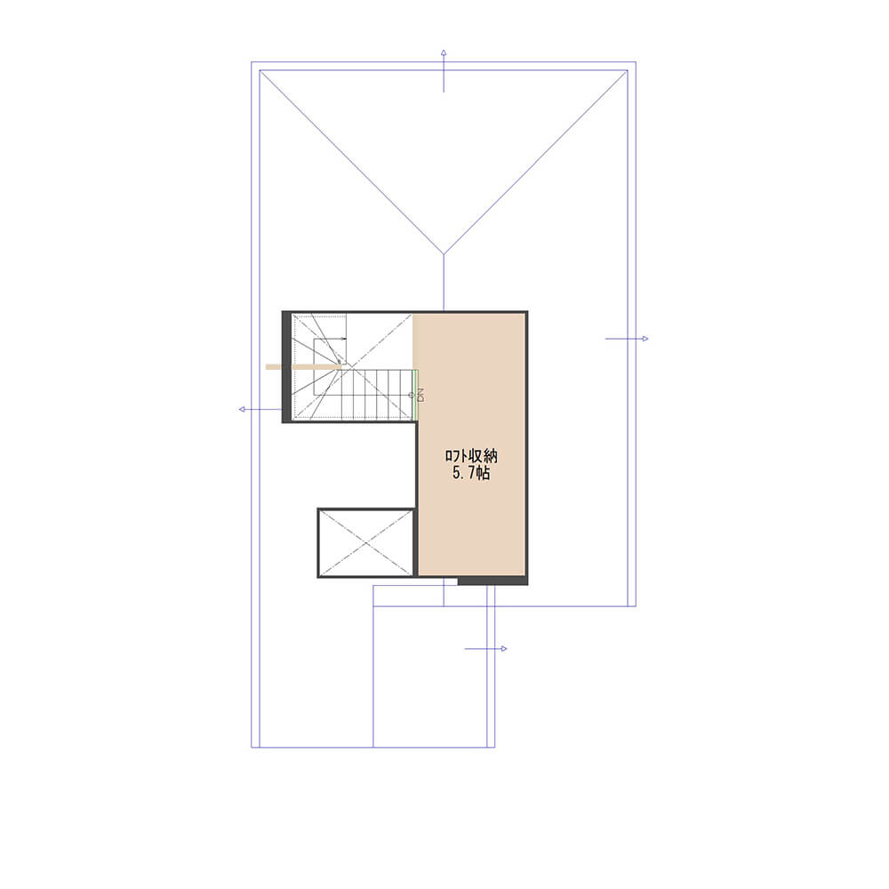
    大きな吹抜と大開口により、自然と家族がリビングに集まる家

    • #大開口
    • #ホームオフィス
    • #収納充実
    • #全館空調
  • 間取り 002
    ELAVie
    • ~3LDK
    • 129.75m2(39.2坪)
    • 13,500
      9,750
    • 1F
    • 2F

    これからの暮らしに寄り添う、スキップフロアのある平屋の家

    • #ひろびろLDK
    • #大開口
    • #ホームオフィス
    • #収納充実
    • #全館空調
  • 間取り 003
    ELAVie
    • ~3LDK
    • 103.88m2(31.4坪)
    • 11,750
      9,750
    • 1F
    • 2F

    2way玄関や6帖もある収納スペースで、すっきり暮らせる平屋の家

    • #大開口
    • #ホームオフィス
    • #収納充実
    • #全館空調
  • 間取り 004
    ELAVie
    • 4LDK
    • 108.66m2(32.9坪)
    • 11,250
      9,750
    • 1F
    • 2F

    程よく閉鎖的で、隠れ家のようなスキップフロアの部屋がある平屋の家

    • #ひろびろLDK
    • #ホームオフィス
    • #収納充実
    • #全館空調
  • 間取り 005
    ELAVie
    • 4LDK
    • 112.56m2(34坪)
    • 8,750
      7,750
    • 1F
    • 2F
    • 3F

    内と外をゆるやかにつなぎ、家族の笑顔もつなぐ家

    • #家事がラク
    • #大開口
    • #ホームオフィス
    • #全館空調
  • 間取り 006
    ELAVie
    • 4LDK
    • 109.94m2(33.3坪)
    • 11,250
      9,750
    • 1F
    • 2F

    大きなファミリークロークを設けた、家事がラクになる家

    • #ひろびろLDK
    • #大開口
    • #収納充実
    • #全館空調
  • 間取り 007
    ELAVie
    • ~3LDK
    • 103.88m2(31.4坪)
    • 11,750
      9,750
    • 1F
    • 2F

    土間収納とファミリークロークを備えた、収納にこだわった家

    • #家事がラク
    • #大開口
    • #ホームオフィス
    • #収納充実
    • #全館空調
  • 間取り 008
    ELAVie
    • 4LDK
    • 96.83m2(29.3坪)
    • 13,500
      7,250
    • 1F
    • 2F

    LDKの南北に窓を設けた、風の抜ける心地良い暮らしができる家

    • #収納充実
    • #全館空調
  • 間取り 009
    ELAVie
    • 4LDK
    • 108.66m2(32.9坪)
    • 11,250
      9,750
    • 1F
    • 2F

    セミオープンキッチンで得意の料理に集中できる平屋の家

    • #ひろびろLDK
    • #大開口
    • #ホームオフィス
    • #収納充実
    • #全館空調
  • 間取り 010
    ELAVie
    • 4LDK
    • 109.16m2(33坪)
    • 11,250
      9,750
    • 1F
    • 2F

    縦にも横にも空間が広がる、開放感いっぱいの家

    • #家事がラク
    • #ひろびろLDK
    • #大開口
    • #ホームオフィス
    • #収納充実
    • #全館空調
  • 間取り 011
    • 4LDK
    • 107.45m2(32.5坪)
    • 9,750
      6,000
    • 1F
    • 2F

    2階とのつながりを感じるリビング階段が家族の時間をはぐくみます

    • #家事がラク
  • 間取り 012
    ELAVie
    • ~3LDK
    • 105.15m2(31.8坪)
    • 7,250
      10,250
    • 1F
    • 2F
    • 3F

    家族とのつながりを感じながら在宅勤務できる住まい

    • #ひろびろLDK
    • #大開口
    • #ホームオフィス
    • #全館空調
  • 間取り 013
    ELAVie
    • 4LDK
    • 114.22m2(34.6坪)
    • 7,750
      10,250
    • 1F
    • 2F
    • 3F

    リビング階段と小屋裏空間のある暮らし

    • #ひろびろLDK
    • #大開口
    • #ホームオフィス
    • #全館空調
  • 間取り 014
    • ~3LDK
    • 96.79m2(29.3坪)
    • 西
    • 11,000
      4,500
    • 1F
    • 2F

    パントリーや玄関収納、各部屋収納たっぷりで整った暮らしができる家

    • #狭小地
    • #全館空調
    • #吹抜
  • 間取り 015
    • ~3LDK
    • 73.94m2(22.4坪)
    • 12,250
      6,000
    • 1F

    家族のスペースや客間としてマルチに使える、広々とした和室のある平屋

  • 間取り 016
    ELAVie
    • ~3LDK
    • 106.4m2(32.2坪)
    • 西
    • 8,250
      8,000
    • 1F
    • 2F
    • 3F

    心地良い床座リビングの家

    • #ホームオフィス
    • #全館空調
    • #吹抜
  • 間取り 017
    ELAVie
    • 4LDK
    • 104.64m2(31.7坪)
    • 14,500
      8,500
    • 1F
    • 2F

    各居室を南面に配置、大開口と吹抜による明るく開放的な間取り

    • #家事がラク
    • #ひろびろLDK
    • #大開口
    • #吹抜
  • 間取り 018
    • ~3LDK
    • 85.23m2(25.8坪)
    • 12,500
      7,250
    • 1F

    LDKを家の中心に、開放感あふれるくつろぎの平屋

  • 間取り 019
    ELAVie
    • 4LDK
    • 94.7m2(28.6坪)
    • 13,000
      7,250
    • 1F
    • 2F

    くつろぎの時間をゆったり過ごせる、大開口と吹抜のあるひろびろリビングの平屋

    • #ひろびろLDK
    • #大開口
    • #吹抜
  • 間取り 020
    ELAVie
    • 4LDK
    • 119.38m2(36.1坪)
    • 7,750
      10,500
    • 1F
    • 2F
    • 3F

    秘密基地のような小屋裏空間がある家

    • #ひろびろLDK
    • #大開口
    • #ホームオフィス
    • #全館空調
  • 間取り 021
    • 4LDK
    • 107.26m2(32.4坪)
    • 8,000
      7,250
    • 1F
    • 2F

    南面から暖かい光をたっぷりとりこむ全館空調の家

    • #家事がラク
    • #大開口
    • #全館空調
  • 間取り 022
    • 5LDK~
    • 137.14m2(41.5坪)
    • 9,750
      7,250
    • 1F
    • 2F

    共有の玄関・ホールで互いの暮らしをを感じあう二世帯住宅

    • #二世帯
    • #2階リビング
    • #全館空調
  • 間取り 023
    • ~3LDK
    • 86.35m2(26.1坪)
    • 11,250
      8,500
    • 1F

    共用と個室、各空間への動線を確保し、家族の程良い距離感を大切にした平屋

  • 間取り 024
    ELAVie
    • 4LDK
    • 109.16m2(33坪)
    • 11,250
      9,750
    • 1F
    • 2F

    バランスよく収納を配置した、自然と部屋が片付く家

    • #大開口
    • #ホームオフィス
    • #収納充実
    • #全館空調
  • 間取り 025
    ELAVie
    • 4LDK
    • 106.05m2(32.1坪)
    • 7,250
      8,250
    • 1F
    • 2F

    大きな吹抜と大開口が叶える、開放感あふれる家

    • #家事がラク
    • #大開口
    • #全館空調
    • #吹抜
  • 間取り 026
    • 4LDK
    • 109.93m2(33.3坪)
    • 9,750
      6,000
    • 1F
    • 2F

    コンパクトな動線で大空間を実現する30坪台の家

    • #狭小地
    • #全館空調
  • 間取り 027
    • ~3LDK
    • 88.86m2(26.9坪)
    • 7,250
      6,000
    • 1F
    • 2F

    LDKを中心に各部屋へのアクセスのしやすさに配慮、狭小地の家

    • #狭小地
  • 間取り 028
    • 4LDK
    • 111.61m2(33.8坪)
    • 8,500
      7,250
    • 1F
    • 2F

    全室が南面設計。リビングと一体で和室とライブラリ―が使えます

    • #大開口
    • #収納充実
  • 間取り 029
    ELAVie
    • 4LDK
    • 102.27m2(30.9坪)
    • 13,750
      8,500
    • 1F
    • 2F

    大開口による光あふれるリビングとゆるやかにつながるダイニングが暮らしを演出

    • #家事がラク
    • #ひろびろLDK
    • #大開口
    • #収納充実
    • #吹抜
  • 間取り 030
    ELAVie
    • ~3LDK
    • 104.44m2(31.6坪)
    • 11,750
      9,750
    • 1F
    • 2F

    家族の空間をひとまとめにゾーニング、ゲストを迎える平屋の家

    • #家事がラク
    • #大開口
    • #収納充実
    • #全館空調
  • 間取り 031
    ELAVie
    • 4LDK
    • 107.42m2(32.5坪)
    • 9,750
      5,750
    • 1F
    • 2F
    • 3F

    2wayの洗面室や家事動線が、家事をラクにしてくれる家

    • #家事がラク
    • #ひろびろLDK
    • #収納充実
    • #全館空調
  • 間取り 032
    • ~3LDK
    • 73.9m2(22.4坪)
    • 9,750
      8,500
    • 1F

    回遊できるキッチン周りの動線で家事もラクラク、LDKを中心に家族が集う平屋

  • 間取り 033
    • 4LDK
    • 105.97m2(32.1坪)
    • 西
    • 7,250
      8,500
    • 1F
    • 2F

    パントリーやクローゼットなどの収納スペースで、ラクラク片付けが叶う家

    • #家事がラク
    • #収納充実
    • #全館空調
  • 間取り 034
    ELAVie
    • ~3LDK
    • 85.04m2(25.7坪)
    • 13,000
      7,250
    • 1F

    広くとった部屋と豊富な収納がゆとりのある2人暮らしを叶える家

    • #ひろびろLDK
    • #大開口
  • 間取り 035
    • 5LDK~
    • 209.9m2(63.5坪)
    • 8,750
      13,500
    • 1F
    • 2F

    普段はそれぞれ、何かあれば助け合える。ほどよい距離を大切にした二世帯住宅

    • #ひろびろLDK
    • #大開口
    • #二世帯
    • #2階リビング
    • #全館空調
  • 間取り 036
    • ~3LDK
    • 60.4m2(18.3坪)
    • 8,250
      7,250
    • 1F

    リビングを中心に夫婦2人がコンパクトに暮らす平屋の家

  • 間取り 037
    ELAVie
    • ~3LDK
    • 114.38m2(34.6坪)
    • 西
    • 7,750
      10,500
    • 1F
    • 2F
    • 3F

    内と外をゆるやかにつなぐ居心地良いリビング

    • #ひろびろLDK
    • #大開口
    • #ホームオフィス
    • #全館空調
  • 間取り 038
    ELAVie
    • ~3LDK
    • 97.26m2(29.4坪)
    • 11,750
      9,750
    • 1F

    タタミコーナーのあるひろびろリビングで、家族のくつろぎ時間を楽しめる平屋

    • #ひろびろLDK
    • #大開口
    • #全館空調
  • 間取り 039
    • 4LDK
    • 118.2m2(35.8坪)
    • 6,000
      9,750
    • 1F
    • 2F

    住空間を有効活用した、街並みにフィットする都市型住宅

    • #狭小地
  • 間取り 040
    • 5LDK~
    • 119.86m2(36.3坪)
    • 8,750
      7,250
    • 1F
    • 2F

    約20帖のひろびろしたLDK。子ども部屋は可変性のある2in1ルーム設計

    • #大開口
  • 間取り 041
    • ~3LDK
    • 126.57m2(38.3坪)
    • 8,500
      8,500
    • 1F
    • 2F

    愛車を眺めながらのんびりくつろぐ、2台駐車可能なインナーガレージのある家

    • #全館空調
    • #インナーガレージ
  • 間取り 042
    ELAVie
    • 4LDK
    • 103.51m2(31.3坪)
    • 8,750
      7,750
    • 1F
    • 2F
    • 3F

    家事室やホームオフィスとして使える和室やスタディコーナーのある家

    • #家事がラク
    • #ホームオフィス
    • #収納充実
    • #全館空調
  • 間取り 043
    ELAVie
    • ~3LDK
    • 86.55m2(26.2坪)
    • 西
    • 9,750
      9,750
    • 1F

    収納とクローゼットを備えた2way玄関、スマート和室でアクセントのあるリビングに

    • #収納充実
  • 間取り 044
    • ~3LDK
    • 81.03m2(24.5坪)
    • 西
    • 11,000
      7,250
    • 1F

    家族の距離間を意識した、自分時間も大切できる平屋

  • 間取り 045
    • 5LDK~
    • 118.95m2(36坪)
    • 西
    • 8,500
      7,250
    • 1F
    • 2F

    対面キッチンで家族の気配をいつでも感じられるLDK

    • #家事がラク
    • #ひろびろLDK
    • #大開口
  • 間取り 046
    • 4LDK
    • 104.03m2(31.5坪)
    • 9,750
      5,500
    • 1F
    • 2F

    コンパクトな建物間口に、書斎やウォークインクローゼットなど多彩な空間のある家

    • #狭小地
    • #ホームオフィス
  • 間取り 047
    • 4LDK
    • 101.83m2(30.8坪)
    • 12,250
      8,500
    • 1F

    暮らしやすさを追求した、のびやかな平屋

    • #家事がラク
    • #大開口
  • 間取り 048
    • ~3LDK
    • 99.45m2(30.1坪)
    • 8,000
      7,500
    • 1F
    • 2F

    大空間LDK、家事動線も考えられた人気のプラン

    • #家事がラク
    • #ひろびろLDK
    • #収納充実
  • 間取り 049
    ELAVie
    • 4LDK
    • 101.38m2(30.7坪)
    • 西
    • 9,250
      12,250
    • 1F
    • 2F

    LDKに吹抜を設け開放感のある空間に。収納配した玄関がスマートな暮らしを演出

    • #家事がラク
    • #収納充実
    • #吹抜
  • 間取り 050
    • 4LDK
    • 111.67m2(33.8坪)
    • 8,250
      7,250
    • 1F
    • 2F

    家事や子育てしやすく、ひろびろ主寝室で2人の時間も取れる家

    • #家事がラク
    • #全館空調
  • 間取り 051
    • ~3LDK
    • 96.34m2(29.1坪)
    • 5,000
      9,500
    • 1F
    • 2F

    リビングとダイニングそれぞれの空間で、家族思い思いの使い方を叶える家

    • #家事がラク
    • #狭小地
    • #全館空調
  • 間取り 052
    • 4LDK
    • 111.01m2(33.6坪)
    • 8,000
      7,250
    • 1F
    • 2F

    帰宅してからすぐ手洗い、ワークスペースのあるニューノーマルな家

    • #ホームオフィス
  • 間取り 053
    • 4LDK
    • 108.67m2(32.9坪)
    • 7,000
      9,750
    • 1F
    • 2F

    おしゃれも便利も妥協しない、アイランドキッチンのある家

    • #ひろびろLDK
  • 間取り 054
    • 4LDK
    • 104.92m2(31.7坪)
    • 8,000
      7,250
    • 1F
    • 2F

    LDKを通って各個室につながる動線が、家族のコミュニケーションを生む家

    • #全館空調
  • 間取り 055
    • 4LDK
    • 111.73m2(33.8坪)
    • 6,000
      12,250
    • 1F
    • 2F

    吹抜で明るいDKがあり、大型バルコニーは多目的に利用できます

    • #ひろびろLDK
    • #大開口
    • #吹抜
  • 間取り 056
    ELAVie
    • ~3LDK
    • 90.23m2(27.3坪)
    • 西
    • 8,750
      11,000
    • 1F

    南面のほとんどを開口することで明るく外とのつながりで開放感を感じる住まいに

    • #家事がラク
  • 間取り 057
    • 4LDK
    • 113.4m2(34.3坪)
    • 西
    • 10,250
      6,000
    • 1F
    • 2F

    北入りの全室が明るい南面設計。採光と風通しが心地良い住まい

    • #家事がラク
    • #ひろびろLDK
    • #大開口
  • 間取り 058
    • 5LDK~
    • 118.2m2(35.8坪)
    • 8,500
      7,250
    • 1F
    • 2F

    キッチンと洗面室がつながるラクラク動線。リビングは南北通風で快適

    • #家事がラク
  • 間取り 059
    • 4LDK
    • 107.24m2(32.4坪)
    • 10,250
      6,000
    • 1F
    • 2F

    家事をラクにする回遊動線とリビングアクセスの大空間を実現する家

    • #家事がラク
    • #ひろびろLDK
    • #狭小地
    • #全館空調
  • 間取り 060
    • 4LDK
    • 108.78m2(32.9坪)
    • 9,750
      6,000
    • 1F
    • 2F

    家族のコミュニケーションと、くつろぎを考えた年中快適空気の家

    • #家事がラク
    • #狭小地
    • #全館空調
  • 間取り 061
    • 4LDK
    • 106.54m2(32.2坪)
    • 7,000
      9,750
    • 1F
    • 2F

    屋内にいながら外とのつながり感じられる大開口リビングのある家

    • #家事がラク
    • #大開口
    • #全館空調
  • 間取り 062
    • 4LDK
    • 99.56m2(30.1坪)
    • 西
    • 9,750
      5,000
    • 1F
    • 2F

    南面から心地良い光と風がそそぎこむ、30坪で大空間の家

    • #ホームオフィス
  • 間取り 063
    • 4LDK
    • 119.69m2(36.2坪)
    • 9,750
      7,250
    • 1F
    • 2F

    吹抜と一体になったリビング階段が、家全体を明るくする住まい

    • #家事がラク
    • #ひろびろLDK
  • 間取り 064
    • ~3LDK
    • 103.97m2(31.5坪)
    • 7,250
      7,250
    • 1F
    • 2F
    • 3F

    2階のLDKに吹抜を設けた縦にも広がる空間が暮らしをもっと快適に

    • #家事がラク
    • #ひろびろLDK
    • #大開口
    • #2階リビング
    • #吹抜
  • 間取り 065
    • ~3LDK
    • 151.47m2(45.8坪)
    • 11,000
      9,750
    • 1F
    • 2F

    2台並列可能なインナーガレージで、リビングから愛車を眺めつつくつろげる家

    • #全館空調
    • #インナーガレージ
  • 間取り 066
    • ~3LDK
    • 79.2m2(24坪)
    • 10,750
      7,250
    • 1F
    • 2F

    家族みんなが顔を合わせやすいワンフロアで過ごす、収納豊富な平屋の家

    • #収納充実
  • 間取り 067
    • 5LDK~
    • 128.13m2(38.8坪)
    • 8,500
      9,750
    • 1F
    • 2F

    豊富な収納で誰でも上手に整理整頓、大空間・大開口LDKのある家

    • #家事がラク
    • #全館空調
  • 間取り 068
    • 4LDK
    • 184.72m2(55.9坪)
    • 11,250
      9,750
    • 1F
    • 2F

    つながりを感じる団らんスペースと、プライバシーを重視した個室のある二世帯住宅

    • #二世帯
    • #全館空調
  • 間取り 069
    • 4LDK
    • 110.74m2(33.5坪)
    • 7,250
      8,500
    • 1F
    • 2F

    ひろびろリビングに便利なタタミコーナーを設けた家事をラクにする住まい

    • #家事がラク
  • 間取り 070
    • 4LDK
    • 111.42m2(33.7坪)
    • 8,250
      7,250
    • 1F
    • 2F

    ウォークインパントリーのある水廻り動線が、毎日の家事をラクにする家

    • #家事がラク
  • 間取り 071
    • 4LDK
    • 101.58m2(30.7坪)
    • 5,500
      9,750
    • 1F
    • 2F

    キッチンからWIPを抜けて洗面室に、インナーバルコニーもある家事がラクな家

    • #家事がラク
    • #狭小地
  • 間取り 072
    • 4LDK
    • 174.37m2(52.7坪)
    • 西
    • 9,750
      10,500
    • 1F
    • 2F

    ひろびろ玄関収納は共有で、プライバシーにも配慮した二世帯住宅

    • #ひろびろLDK
    • #二世帯
    • #2階リビング
    • #全館空調
  • 間取り 073
    • 5LDK~
    • 147.52m2(44.6坪)
    • 西
    • 8,750
      6,000
    • 1F
    • 2F
    • 3F

    3階建で家族みんなの部屋を設け、プライバシーに配慮した二世帯住宅

    • #狭小地
    • #二世帯
    • #2階リビング
  • 間取り 074
    ELAVie
    • 4LDK
    • 124.94m2(37.8坪)
    • 8,250
      8,250
    • 1F
    • 2F
    • 3F

    和室の奥に隠された書斎がこだわりを感じる、大人の隠れ家を実現した家

    • #家事がラク
    • #ホームオフィス
    • #収納充実
    • #全館空調
    • #吹抜
  • 間取り 075
    ELAVie
    • ~3LDK
    • 107.58m2(32.5坪)
    • 7,500
      8,250
    • 1F
    • 2F
    • 3F

    ひろびろとしたリビングと大容量の収納が、ゆったり暮らす毎日を叶える家

    • #家事がラク
    • #大開口
    • #ホームオフィス
    • #収納充実
    • #全館空調
  • 間取り 076
    • 5LDK~
    • 203.12m2(61.4坪)
    • 15,000
      7,250
    • 1F
    • 2F

    水廻りをそれぞれ設け、お互いの生活リズムも尊重できる二世帯住宅

    • #ひろびろLDK
    • #大開口
    • #二世帯
    • #2階リビング
  • 間取り 077
    • 4LDK
    • 105.1m2(31.8坪)
    • 8,250
      7,250
    • 1F
    • 2F

    1階南面にLDK、2階南面の3つ居室を配し、住空間を光あふれるスペースに

    • #家事がラク
    • #大開口
  • 間取り 078
    • 4LDK
    • 128.24m2(38.8坪)
    • 11,250
      7,250
    • 1F
    • 2F

    外部空間も部屋の一部に。インナーテラスとビックバルコニーがある家

    • #ひろびろLDK
    • #大開口
    • #吹抜
    • #インナーガレージ
  • 間取り 079
    • ~3LDK
    • 87.98m2(26.6坪)
    • 7,500
      6,750
    • 1F
    • 2F

    すべての部屋が南向き、1日を通して、暮らしが明るい陽射しに包まれる家

  • 間取り 080
    ELAVie
    • 4LDK
    • 116.62m2(35.3坪)
    • 8,250
      7,750
    • 1F
    • 2F
    • 3F

    作業環境を変えて集中力UP、宿題や在宅勤務に便利なスペースのある家

    • #家事がラク
    • #ひろびろLDK
    • #ホームオフィス
    • #全館空調
    • #吹抜
  • 間取り 081
    • ~3LDK
    • 96.91m2(29.3坪)
    • 6,000
      9,750
    • 1F
    • 2F

    広いLDKを雁行させ、空間の広がりを演出、贅沢なルーフバルコニーも

    • #家事がラク
    • #ひろびろLDK
    • #大開口
    • #狭小地
  • 間取り 082
    • 4LDK
    • 114.33m2(34.6坪)
    • 6,000
      9,750
    • 1F
    • 2F

    収納スペースが家中たくさん、アイランドキッチンのある家

    • #ひろびろLDK
    • #大開口
    • #狭小地
    • #全館空調
  • 間取り 083
    • 5LDK~
    • 120.15m2(36.3坪)
    • 9,250
      7,250
    • 1F
    • 2F

    4m大開口のLDKとスクエアなテラスバルコニーがある5LDKの家

    • #ひろびろLDK
    • #大開口
  • 間取り 084
    • 4LDK
    • 109.2m2(33坪)
    • 9,750
      6,000
    • 1F
    • 2F

    柱のない大空間と豊富な収納がゆとりの暮らしを実現します

    • #狭小地
  • 間取り 085
    • ~3LDK
    • 96.7m2(29.3坪)
    • 6,000
      9,750
    • 1F
    • 2F

    キッチンをぐるりと回れる家事動線と大容量収納で、暮らしをラクにする家

    • #家事がラク
    • #狭小地
  • 間取り 086
    • ~3LDK
    • 98.51m2(29.8坪)
    • 8,000
      7,250
    • 1F
    • 2F

    LDKと水廻りのエリアを分け、来客や家族のスペースをいつもキレイに保てる家

  • 間取り 087
    • 5LDK~
    • 216.27m2(65.4坪)
    • 12,250
      9,750
    • 1F
    • 2F

    ご両親には和室、お子様世帯には便利なタタミスペースを。皆が嬉しい二世帯住宅

    • #ひろびろLDK
    • #大開口
    • #二世帯
    • #ホームオフィス
    • #収納充実
    • #2階リビング
    • #全館空調
  • 間取り 088
    • 4LDK
    • 118.08m2(35.7坪)
    • 西
    • 9,250
      7,250
    • 1F
    • 2F

    柱レスで約45㎡の大空間。インフィルフリーで好みのデザインを実現

    • #ひろびろLDK
  • 間取り 089
    • 4LDK
    • 103.52m2(31.3坪)
    • 西
    • 6,000
      8,500
    • 1F
    • 2F

    書斎空間やコンパクトな水廻り動線が、毎日の暮らしをスムーズにする家

    • #家事がラク
    • #ホームオフィス
    • #全館空調
  • 間取り 090
    • ~3LDK
    • 83.61m2(25.3坪)
    • 5,000
      8,250
    • 1F
    • 2F

    コンパクトながら、広さを感じるLDK中心の住まい

    • #狭小地
    • #ホームオフィス
  • 間取り 091
    • ~3LDK
    • 99.99m2(30.2坪)
    • 7,750
      8,000
    • 1F
    • 2F

    まとまった水廻りにインナーバルコニーをプラスした家事がラクな家

    • #家事がラク
    • #ひろびろLDK
  • 間取り 092
    ELAVie
    • ~3LDK
    • 71.87m2(21.7坪)
    • 8,000
      9,750
    • 1F
    • 2F

    リビングとダイニングに吹抜を設け、コンパクトながら広がりを感じる家

    • #吹抜
  • 間取り 093
    ELAVie
    • ~3LDK
    • 102.02m2(30.9坪)
    • 9,250
      12,250
    • 1F

    内と外がつながる、光が溢れるコの字型の平屋

  • 間取り 094
    • 4LDK
    • 109.83m2(33.2坪)
    • 9,750
      6,000
    • 1F
    • 2F

    吹抜リビングでさらに開放的に、ワイドキャンチルーフの家

    • #家事がラク
    • #狭小地
  • 間取り 095
    • ~3LDK
    • 104.48m2(31.6坪)
    • 西
    • 12,250
      9,750
    • 1F
    • 2F

    回遊動線で家事がスムーズに、吹抜リビングのある平屋の家

    • #ひろびろLDK
    • #大開口
    • #全館空調
    • #吹抜
  • 間取り 096
    • 4LDK
    • 118.53m2(35.9坪)
    • 8,250
      8,500
    • 1F
    • 2F

    20帖を超える広いLDKを2間の大開口が明るい暮らしを演出

    • #家事がラク
    • #ひろびろLDK
    • #大開口
    • #収納充実
  • 間取り 097
    • 4LDK
    • 122.06m2(36.9坪)
    • 5,500
      12,250
    • 1F
    • 2F

    パントリーを含めて設計した家事動線、豊富な収納ですっきり暮らせる家

    • #家事がラク
    • #ひろびろLDK
    • #大開口
    • #狭小地
    • #収納充実
  • 間取り 098
    • 4LDK
    • 102.82m2(31.1坪)
    • 6,000
      9,750
    • 1F
    • 2F

    マルチに使えるタタミコーナーをリビング空間に設けた、家族でくつろげる家

    • #家事がラク
    • #ひろびろLDK
    • #狭小地
  • 間取り 099
    • 4LDK
    • 105.99m2(32.1坪)
    • 西
    • 9,500
      5,500
    • 1F
    • 2F

    全部屋南向き、光がたっぷりと降り注ぐ2階LDKの家

    • #家事がラク
    • #収納充実
    • #2階リビング
  • 間取り 100
    • 4LDK
    • 109.33m2(33.1坪)
    • 9,750
      6,000
    • 1F
    • 2F

    ランドリールームとしても使える家事室で叶えるストレスフリーな家

    • #家事がラク
    • #狭小地
  • 間取り 101
    • ~3LDK
    • 109.65m2(33.2坪)
    • 5,500
      10,500
    • 1F
    • 2F

    たっぷり収納とインナーバルコニー、家事効率を追求した快適な家

    • #家事がラク
    • #狭小地
    • #収納充実
  • 間取り 102
    • ~3LDK
    • 88.86m2(26.9坪)
    • 7,500
      6,250
    • 1F
    • 2F

    日常の買いだめや非常時の備えに、大きく開けるパントリーのある家

    • #狭小地
  • 間取り 103
    • 4LDK
    • 111.74m2(33.8坪)
    • 西
    • 8,250
      7,250
    • 1F
    • 2F

    大開口で開放感のあるリビングと大きなバルコニーが暮らしを豊かに

    • #家事がラク
    • #ひろびろLDK
    • #大開口
    • #収納充実
  • 間取り 104
    • 4LDK
    • 123.2m2(37.3坪)
    • 8,750
      8,500
    • 1F
    • 2F

    休日にはBBQや季節のイベントを、ひろびろルーフバルコニーのある家

    • #家事がラク
    • #ひろびろLDK
  • 間取り 105
    • ~3LDK
    • 111.06m2(33.6坪)
    • 8,500
      7,750
    • 1F
    • 2F

    大空間LDK、家事室やパントリーがつながる家事負担を減らす家

    • #家事がラク
    • #ホームオフィス
  • 間取り 106
    • 4LDK
    • 115.18m2(34.8坪)
    • 10,750
      7,250
    • 1F
    • 2F

    L型のLDK+和室でひろびろ演出。寝室には大型プライベートバルコニー

    • #ひろびろLDK
    • #大開口
  • 間取り 107
    • 4LDK
    • 106.7m2(32.3坪)
    • 8,500
      7,250
    • 1F
    • 2F

    タタミコーナーのある陽当たりの良いリビングで、家族皆がくつろげる家

  • 間取り 108
    • ~3LDK
    • 110.83m2(33.5坪)
    • 8,000
      7,750
    • 1F
    • 2F

    たっぷり収納!無理なく暮らしが整うやさしい家

    • #収納充実
  • 間取り 109
    • 4LDK
    • 111.58m2(33.8坪)
    • 8,250
      7,250
    • 1F
    • 2F

    広いルーフバルコニーをプラス、豊かさが深まる多彩な家

    • #家事がラク
    • #収納充実
    • #全館空調
  • 間取り 110
    • 4LDK
    • 106.49m2(32.2坪)
    • 9,750
      11,000
    • 1F
    • 2F

    小屋裏収納が住まいの収納力を上げ、ゆとりの空間を実現

    • #収納充実
  • 間取り 111
    • ~3LDK
    • 104.66m2(31.7坪)
    • 7,250
      8,500
    • 1F
    • 2F

    スニーカーや自転車もすっきり収納、土間収納がある家

    • #家事がラク
    • #全館空調
  • 間取り 112
    • 4LDK
    • 108.38m2(32.8坪)
    • 5,500
      9,750
    • 1F
    • 2F

    子ども部屋は将来2部屋にできる、子育て・家事をサポートする家

    • #狭小地
    • #ホームオフィス
  • 間取り 113
    • 4LDK
    • 104.77m2(31.7坪)
    • 5,000
      11,000
    • 1F
    • 2F

    アイランドキッチンやウォークインクローゼットで暮らしをお洒落に楽しめる家

    • #狭小地
  • 間取り 114
    • 4LDK
    • 119.04m2(36坪)
    • 6,000
      11,000
    • 1F
    • 2F

    玄関からパントリーを通ってキッチンへ。収納と家事効率を考えた家

    • #家事がラク
    • #狭小地
    • #収納充実
  • 間取り 115
    • 4LDK
    • 118.56m2(35.9坪)
    • 9,750
      7,250
    • 1F
    • 2F

    リビング隣の多目的和室と寝室と、2つのワークスペースがある家

    • #ひろびろLDK
    • #大開口
  • 間取り 116
    ELAVie
    • 4LDK
    • 123.31m2(37.3坪)
    • 8,750
      7,750
    • 1F
    • 2F
    • 3F

    玄関手洗いやホームオフィス、現代の暮らしに求められる家

    • #ホームオフィス
    • #収納充実
    • #全館空調
    • #吹抜
  • 間取り 117
    • ~3LDK
    • 109.36m2(33.1坪)
    • 8,750
      7,250
    • 1F
    • 2F

    リビング階段を配したリビングが空間の広がり演出、書斎を使用し在宅勤務も

    • #ホームオフィス
  • 間取り 118
    • 4LDK
    • 108.43m2(32.8坪)
    • 10,750
      6,000
    • 1F
    • 2F

    家事動線に配慮しながら、各室の用途にあわせて収納が豊富にある家

    • #家事がラク
    • #収納充実
    • #全館空調
  • 間取り 119
    • 4LDK
    • 119.82m2(36.2坪)
    • 9,750
      8,500
    • 1F
    • 2F

    L型のLDK+和室でひろびろ設計。廊下を少なく居室を広くにこだわりました

    • #家事がラク
    • #ひろびろLDK
    • #大開口
  • 間取り 120
    • 4LDK
    • 226.18m2(68.4坪)
    • 9,250
      13,500
    • 1F
    • 2F
    • 3F

    26帖のひろびろLDKでプライバシーを確保する二世帯住宅

    • #ひろびろLDK
    • #二世帯
    • #ホームオフィス
    • #収納充実
    • #2階リビング
    • #全館空調
    • #インナーガレージ
  • 間取り 121
    • ~3LDK
    • 94.58m2(28.6坪)
    • 5,500
      8,500
    • 1F
    • 2F

    陽射しのたっぷり入る大空間のリビングダイニングが、家族を包み込む家

    • #狭小地
  • 間取り 122
    • ~3LDK
    • 68.64m2(20.8坪)
    • 8,750
      8,500
    • 1F
    • 2F

    スマート和室が様々な場面で大活躍、2人で暮らす平屋の家

    • #全館空調
  • 間取り 123
    • ~3LDK
    • 115.72m2(35坪)
    • 10,250
      6,000
    • 1F
    • 2F

    全室南面設計の4LDK。適材適所の収納にこだわった住まい

    • #家事がラク
    • #大開口
    • #収納充実
  • 間取り 124
    • 4LDK
    • 115.96m2(35.1坪)
    • 9,250
      7,250
    • 1F
    • 2F

    各フロアたっぷり収納で、おしゃれな空間づくりができる家

    • #大開口
  • 間取り 125
    • 4LDK
    • 101.28m2(30.6坪)
    • 6,000
      9,750
    • 1F
    • 2F

    お好みに合わせて使い方たくさん楽しめる、ルーフバルコニーのある家

    • #大開口
    • #狭小地
  • 間取り 126
    ELAVie
    • 4LDK
    • 101.36m2(30.7坪)
    • 9,250
      6,500
    • 1F
    • 2F
    • 3F

    キッチンから和室の子どもを見守ることができる、成長に合わせた可変性のある家

    • #家事がラク
    • #ホームオフィス
    • #収納充実
    • #全館空調
    • #吹抜
  • 間取り 127
    • ~3LDK
    • 95.37m2(28.8坪)
    • 6,000
      8,250
    • 1F
    • 2F

    家族団らんいつも集まるLDKで快適な住まいを実現した家

    • #狭小地
  • 間取り 128
    • 4LDK
    • 115.62m2(35坪)
    • 9,750
      4,500
    • 1F
    • 2F
    • 3F

    各フロアに書斎やデスクスペースを設けた、共働きのテレワークを快適にする家

    • #狭小地
    • #全館空調
    • #吹抜
  • 間取り 129
    ELAVie
    • ~3LDK
    • 78.2m2(23.7坪)
    • 10,750
      7,250
    • 1F
    • 2F

    全ての部屋が南向き。書斎やロフト収納で皆のくつろぎ空間をすっきり保てる家

    • #ホームオフィス
    • #全館空調
  • 間取り 130
    • 4LDK
    • 121.98m2(36.9坪)
    • 10,250
      7,250
    • 1F
    • 2F

    6つのW.I.Cがある5LDK。明るく快適に暮らせる住まい

    • #ひろびろLDK
    • #大開口
    • #収納充実
    • #吹抜
  • 間取り 131
    • 5LDK~
    • 114.25m2(34.6坪)
    • 7,750
      8,500
    • 1F
    • 2F

    約23帖のLDK+和室の一体設計。玄関もクローゼット付きですっきり

    • #家事がラク
    • #大開口
    • #収納充実
  • 間取り 132
    • 4LDK
    • 108.67m2(32.9坪)
    • 7,000
      9,750
    • 1F
    • 2F

    家中どこでも移動がしやすい、動線にとことんこだわった家

    • #家事がラク
    • #大開口
    • #ホームオフィス
  • 間取り 133
    • 4LDK
    • 101.53m2(30.7坪)
    • 6,000
      9,750
    • 1F
    • 2F

    大開口のLDKとビッグバルコニーで光をたっぷり取り入れる家

    • #狭小地
    • #全館空調
  • 間取り 134
    • ~3LDK
    • 113.77m2(34.4坪)
    • 6,000
      10,000
    • 1F
    • 2F

    LDK+和室、インナーバルコニーのある家

    • #収納充実
  • 間取り 135
    • ~3LDK
    • 99.38m2(30.1坪)
    • 西
    • 9,750
      5,500
    • 1F
    • 2F

    全部屋南向き、効率的なプランニングで、便利さと快適性を両立した家

    • #狭小地
  • 間取り 136
    • 4LDK
    • 103.35m2(31.3坪)
    • 6,000
      9,000
    • 1F
    • 2F

    ひろびろリビングや書斎で、家族いっしょの時間もそれぞれの時間も楽しめる家

    • #狭小地
    • #吹抜
  • 間取り 137
    ELAVie
    • ~3LDK
    • 126.82m2(38.4坪)
    • 15,500
      9,750
    • 1F
    • 2F

    自然の風と光を感じる、多彩な空間で家族時間をゆたかに

    • #ひろびろLDK
    • #大開口
    • #ホームオフィス
    • #収納充実
    • #全館空調
    • #吹抜
  • 間取り 138
    • 4LDK
    • 110.97m2(33.6坪)
    • 14,000
      9,750
    • 1F
    • 2F

    暮らしの真ん中に吹抜リビングを、家族が集う平屋の家

    • #家事がラク
    • #ひろびろLDK
    • #大開口
    • #全館空調
    • #吹抜
  • 間取り 139
    ELAVie
    • 4LDK
    • 130.63m2(39.5坪)
    • 9,250
      7,750
    • 1F
    • 2F
    • 3F

    すっきりたっぷり収納できる土間続きの2way玄関クローゼットのある家

    • #家事がラク
    • #ホームオフィス
    • #収納充実
    • #2階リビング
    • #全館空調
    • #吹抜
  • 間取り 140
    • 5LDK~
    • 120.46m2(36.4坪)
    • 9,250
      7,750
    • 1F
    • 2F

    読書や家事、在宅勤務など多用途に使えるワークスペースのある家

    • #ひろびろLDK
    • #大開口
    • #ホームオフィス
    • #収納充実
  • 間取り 141
    ELAVie
    • ~3LDK
    • 99.42m2(30.1坪)
    • 7,000
      8,250
    • 1F
    • 2F
    • 3F

    ひろびろリビングや書斎で、家族いっしょの時間もそれぞれの時間も楽しめる家

    • #ホームオフィス
    • #収納充実
    • #全館空調
  • 間取り 142
    • ~3LDK
    • 98.54m2(29.8坪)
    • 8,000
      7,250
    • 1F
    • 2F

    玄関から家に入ると、陽射しのたっぷり入るリビングダイニングが広がる家

  • 間取り 143
    • ~3LDK
    • 90.71m2(27.4坪)
    • 5,000
      9,000
    • 1F
    • 2F

    ひろびろとしたリビングと大容量の収納が、ゆったり暮らす毎日を叶える家

    • #狭小地
    • #全館空調
  • 間取り 144
    ELAVie
    • 4LDK
    • 111.48m2(33.7坪)
    • 13,250
      9,750
    • 1F

    大きく広がるLDKは大開口、開放感のある光あふれる家

    • #ひろびろLDK
    • #大開口
  • 間取り 145
    ELAVie
    • ~3LDK
    • 76.74m2(23.2坪)
    • 12,250
      7,250
    • 1F

    全居室南向き、暖かくコンパクトな暮らしを実現する平屋の家

    • #家事がラク
    • #全館空調
  • 間取り 146
    • 4LDK
    • 115.91m2(35.1坪)
    • 8,500
      9,750
    • 1F
    • 2F

    LDKとつながるスマート和室がとても便利、家事がラクな家

    • #家事がラク
    • #ホームオフィス
  • 間取り 147
    • ~3LDK
    • 164.34m2(49.7坪)
    • 11,250
      9,750
    • 1F
    • 2F

    陽当たりと周囲からの視線を考慮した、2階LDKのある家

    • #家事がラク
    • #ひろびろLDK
    • #大開口
    • #収納充実
    • #2階リビング
    • #全館空調
    • #インナーガレージ
  • 間取り 148
    • ~3LDK
    • 99.75m2(30.2坪)
    • 8,250
      6,000
    • 1F
    • 2F

    家族みんなでくつろげる、ぬくもり感じるLDKのある家

    • #狭小地
  • 間取り 149
    • ~3LDK
    • 109.97m2(33.3坪)
    • 5,500
      9,750
    • 1F
    • 2F

    集中できる書斎や家族の気配を感じるセカンドリビングで、テレワークを楽しめる家

    • #狭小地
    • #ホームオフィス
    • #2階リビング
    • #全館空調
  • 間取り 150
    • 4LDK
    • 117.97m2(35.7坪)
    • 8,000
      8,500
    • 1F
    • 2F

    柱のない大空間と南面の大開口が光あふれる暮らしを演出

    • #家事がラク
    • #大開口
    • #収納充実
  • 間取り 151
    • 4LDK
    • 111.99m2(33.9坪)
    • 7,250
      8,500
    • 1F
    • 2F

    仕事や学校の行き帰りにひとこと、家族間コミュニケーションを重視した家

    • #全館空調
  • 間取り 152
    • 4LDK
    • 108.76m2(32.9坪)
    • 6,750
      8,500
    • 1F
    • 2F

    すっきりひろびろ玄関・ホールで毎日帰宅が楽しみになる家

    • #ひろびろLDK
  • 間取り 153
    • 5LDK~
    • 134.33m2(40.6坪)
    • 9,750
      8,500
    • 1F
    • 2F

    和室とつなげてゆったり使える個室のある、二世帯同居にもぴったりの家

  • 間取り 154
    • ~3LDK
    • 97.55m2(29.5坪)
    • 5,500
      8,750
    • 1F
    • 2F

    すっきり収納、家族が自然と集まるリビング階段のある家

    • #家事がラク
    • #狭小地
    • #収納充実
    • #全館空調
  • 間取り 155
    • 4LDK
    • 105.15m2(31.8坪)
    • 11,750
      9,750
    • 1F
    • 2F

    すべての居室を南面配置し採光を確保、ロフトを含めた収納も充実した家

    • #ひろびろLDK
    • #大開口
    • #吹抜
  • 間取り 156
    • 4LDK
    • 108.49m2(32.8坪)
    • 9,750
      7,500
    • 1F
    • 2F

    プライバシーと開放感のベストバランス、ルーフバルコニーのある家

  • 間取り 157
    • ~3LDK
    • 101.24m2(30.6坪)
    • 6,000
      9,750
    • 1F
    • 2F

    毎日の買い物もラクラク、ウォークインパントリーのある便利な家事動線の家

    • #家事がラク
  • 間取り 158
    • 4LDK
    • 121.79m2(36.8坪)
    • 8,750
      8,500
    • 1F
    • 2F

    大きな窓から差し込む陽射しが家族みんなを暖める家

    • #家事がラク
    • #ひろびろLDK
    • #大開口
    • #収納充実
  • 間取り 159
    • 4LDK
    • 112.95m2(34.2坪)
    • 9,750
      6,000
    • 1F
    • 2F

    家事動線へこだわり、リビングイン階段と吹抜がフロアをつなぐ家

    • #家事がラク
    • #ひろびろLDK
    • #狭小地
    • #ホームオフィス
    • #全館空調
  • 間取り 160
    • 4LDK
    • 116.61m2(35.3坪)
    • 10,250
      7,250
    • 1F
    • 2F

    LDKと和室の一体設計。10帖のバルコニーは家族プライベートガーデン

    • #大開口
  • 間取り 161
    • ~3LDK
    • 93.87m2(28.4坪)
    • 8,750
      5,500
    • 1F
    • 2F

    間口6m、狭小地でもひろびろLDKの住まい

    • #狭小地
  • 間取り 162
    • ~3LDK
    • 96.13m2(29.1坪)
    • 6,250
      8,500
    • 1F
    • 2F

    極上のプライベート空間、2階リビングの家

    • #ひろびろLDK
    • #狭小地
    • #2階リビング
    • #全館空調
  • 間取り 163
    • ~3LDK
    • 110.67m2(33.5坪)
    • 7,750
      7,750
    • 1F
    • 2F

    回遊できる家事動線とwithコロナ対策で奥様が安心の住まい

    • #家事がラク
    • #大開口
    • #ホームオフィス
    • #収納充実
  • 間取り 164
    • 4LDK
    • 127.59m2(38.6坪)
    • 8,750
      7,750
    • 1F
    • 2F

    生活動線にこだわった、共働きご夫婦にぴったりの家事がラクな家

    • #家事がラク
    • #大開口
    • #収納充実
  • 間取り 165
    • 4LDK
    • 107.95m2(32.7坪)
    • 西
    • 11,000
      6,000
    • 1F
    • 2F

    2階に配置した浴室・洗面室が家事をお助け、ひろびろ収納のある家

    • #狭小地
    • #全館空調
  • 間取り 166
    ELAVie
    • ~3LDK
    • 100.01m2(30.3坪)
    • 14,750
      7,250
    • 1F

    マルチに使えるホームオフィスを備えた、毎日の家事がラクになる家

    • #ひろびろLDK
    • #大開口
  • 間取り 167
    • ~3LDK
    • 92.57m2(28坪)
    • 6,000
      8,250
    • 1F
    • 2F

    スマート和室に、インナーバルコニー、コンパクトに工夫ある暮らし

    • #家事がラク
    • #狭小地
  • 間取り 168
    • ~3LDK
    • 82.32m2(24.9坪)
    • 10,750
      8,500
    • 1F
    • 2F

    限りある空間を上手く活用、ミニマムに暮らす平屋の家

    • #全館空調
  • 間取り 169
    • 4LDK
    • 103.16m2(31.2坪)
    • 6,000
      9,750
    • 1F
    • 2F

    タタミコーナーや、便利な土間クローゼットなど、暮らしを楽しむ工夫のある家

    • #家事がラク
    • #ひろびろLDK
    • #狭小地
  • 間取り 170
    • 4LDK
    • 107.61m2(32.6坪)
    • 8,000
      8,000
    • 1F
    • 2F

    和室とLDKがつながる大空間、インナーバルコニーがある家

  • 間取り 171
    • ~3LDK
    • 123.19m2(37.3坪)
    • 4,500
      9,750
    • 1F
    • 2F
    • 3F

    スペースを有効活用、狭小地に建てる3階建の家

    • #家事がラク
    • #ひろびろLDK
    • #大開口
    • #狭小地
    • #2階リビング
  • 間取り 172
    • 4LDK
    • 110.74m2(33.5坪)
    • 6,000
      9,750
    • 1F
    • 2F

    約22帖のワンルームLDK。奥行1m超のルーフバルコニーが便利です

    • #家事がラク
    • #ひろびろLDK
    • #大開口
    • #狭小地
  • 間取り 173
    • 4LDK
    • 111.11m2(33.6坪)
    • 7,500
      9,750
    • 1F
    • 2F

    開放的なLDKとサーキュレーション家事動線の子育てを応援する家

    • #家事がラク
    • #ひろびろLDK
    • #大開口
  • 間取り 174
    • ~3LDK
    • 107.65m2(32.6坪)
    • 西
    • 8,500
      7,500
    • 1F
    • 2F

    用途に合わせた収納充実、自然と家族が集まるLDKの家

    • #収納充実
    • #全館空調
  • 間取り 175
    • 4LDK
    • 126.2m2(38.2坪)
    • 西
    • 14,500
      9,750
    • 1F

    子どもが走り回れるひろびろリビング、効率よく家事をこなすことができる平屋

    • #家事がラク
    • #ひろびろLDK
  • 間取り 176
    • ~3LDK
    • 114.92m2(34.8坪)
    • 12,500
      9,750
    • 1F
    • 2F

    大きな吹抜で開放的な空間づくり、インナーガレージのある家

    • #ひろびろLDK
    • #大開口
    • #収納充実
    • #全館空調
    • #吹抜
    • #インナーガレージ
  • 間取り 177
    • ~3LDK
    • 99.38m2(30.1坪)
    • 9,750
      5,500
    • 1F
    • 2F

    リビングイン階段で顔を合わせたコミュニケーションをとれる家

    • #家事がラク
    • #狭小地
    • #全館空調
  • 間取り 178
    • 4LDK
    • 129.29m2(39.1坪)
    • 10,250
      8,500
    • 1F
    • 2F

    大開口リビングを通り、将来間仕切り対応可能な部屋へとつながる子育て世帯の家

    • #家事がラク
    • #大開口
    • #ホームオフィス
    • #全館空調
  • 間取り 179
    • ~3LDK
    • 95.44m2(28.9坪)
    • 6,000
      8,500
    • 1F
    • 2F

    家事の時短、効率化でゆとりを。毎日の生活も楽しむ家

    • #家事がラク
    • #狭小地
  • 間取り 180
    • 4LDK
    • 119.93m2(36.3坪)
    • 8,000
      9,750
    • 1F
    • 2F

    回遊動線でスムーズに水廻りや2階へ移動できる大開口LDKのある家

    • #家事がラク
    • #収納充実
    • #全館空調
  • 間取り 181
    • 4LDK
    • 110.58m2(33.5坪)
    • 9,750
      6,000
    • 1F
    • 2F

    吹抜が1階と2階に適度な空間のつながりを生み出す狭小地の家

    • #家事がラク
    • #狭小地
  • 間取り 182
    • 4LDK
    • 143.39m2(43.4坪)
    • 14,500
      11,000
    • 1F
    • 2F

    明るく暖かい大空間に、家事がラクになるアイデアをプラス

    • #家事がラク
    • #ひろびろLDK
    • #大開口
    • #収納充実
    • #吹抜
  • 間取り 183
    • 4LDK
    • 129.34m2(39.1坪)
    • 16,000
      8,500
    • 1F
    • 2F

    吹抜リビングで空間が開放的に、コンパクト動線の快適な平屋

    • #家事がラク
    • #ひろびろLDK
    • #大開口
    • #収納充実
    • #吹抜
  • 間取り 184
    • 4LDK
    • 117.47m2(35.5坪)
    • 8,250
      7,750
    • 1F
    • 2F

    大空間、大開口の開放的なリビング空間、全居室南向きの明るい住まい

    • #ひろびろLDK
    • #大開口
  • 間取り 185
    • 4LDK
    • 119.87m2(36.3坪)
    • 9,250
      7,250
    • 1F
    • 2F

    2つの玄関クローゼットが便利。外出の身支度や帰宅時の片付けを効率UP

    • #大開口
    • #収納充実
  • 間取り 186
    • 4LDK
    • 116.22m2(35.2坪)
    • 西
    • 9,750
      7,250
    • 1F
    • 2F

    みんなが使うスペースとプライベート領域が交わらない工夫がうれしい

    • #家事がラク
    • #ひろびろLDK
    • #大開口
  • 間取り 187
    • 4LDK
    • 118.78m2(35.9坪)
    • 8,500
      7,250
    • 1F
    • 2F

    家事も仕事も宿題も、家族で一緒に使える広めの書斎がある家

    • #家事がラク
    • #ひろびろLDK
    • #大開口
    • #ホームオフィス
    • #全館空調
  • 間取り 188
    • 4LDK
    • 108.2m2(32.7坪)
    • 6,000
      9,750
    • 1F
    • 2F

    キッチン中心のLDKや多用途なタタミコーナーで、家族のつながりを感じる家

    • #ひろびろLDK
    • #狭小地
  • 間取り 189
    • ~3LDK
    • 113.96m2(34.5坪)
    • 西
    • 10,250
      5,500
    • 1F
    • 2F

    スムーズな家事動線を考えた、2階LDKのある家

    • #家事がラク
    • #ひろびろLDK
    • #狭小地
    • #2階リビング
    • #全館空調
  • 間取り 190
    ELAVie
    • 4LDK
    • 124.74m2(37.7坪)
    • 15,500
      9,750
    • 1F

    キッチン裏に家事が便利になる一工夫、豊富な収納ですっきり暮らす家

    • #家事がラク
    • #ひろびろLDK
    • #収納充実
  • 間取り 191
    • 4LDK
    • 168.52m2(51坪)
    • 西
    • 12,250
      9,250
    • 1F
    • 2F

    愛車のためのインナーガレージ、家族のためのひろびろ2階リビングの家

    • #家事がラク
    • #ひろびろLDK
    • #収納充実
    • #2階リビング
    • #全館空調
    • #インナーガレージ
  • 間取り 192
    • ~3LDK
    • 106.92m2(32.3坪)
    • 10,000
      6,250
    • 1F
    • 2F

    カウンターを置いた広めの洗面室が洗濯に便利、家事をサポートする家

    • #狭小地
  • 間取り 193
    • 4LDK
    • 122.67m2(37.1坪)
    • 9,250
      8,500
    • 1F
    • 2F

    子どもの成長に応じて部屋を使い分けられる設計で子育てをサポートする家

    • #家事がラク
    • #収納充実
  • 間取り 194
    • 5LDK~
    • 128.6m2(38.9坪)
    • 11,250
      6,000
    • 1F
    • 2F

    全部屋南向き、開放感あふれるリビングにお洒落なスケルトン階段のある家

    • #家事がラク
    • #ひろびろLDK
    • #大開口
    • #狭小地
  • 間取り 195
    • 4LDK
    • 139.74m2(42.3坪)
    • 西
    • 15,500
      9,750
    • 1F

    LDKを中心に家族とほっこり、暮らしを楽しむ平屋

    • #家事がラク
    • #ひろびろLDK
    • #収納充実
  • 間取り 196
    • 4LDK
    • 114.91m2(34.8坪)
    • 13,000
      11,000
    • 1F

    家族もゲストものんびりくつろぐことができるひろびろリビングのある家

    • #家事がラク
    • #ひろびろLDK
  • 間取り 197
    • ~3LDK
    • 150.76m2(45.6坪)
    • 11,250
      8,500
    • 1F
    • 2F

    家族みんなのお気に入り、大空間・大開口LDKのある家

    • #家事がラク
    • #ひろびろLDK
    • #大開口
    • #ホームオフィス
    • #収納充実
    • #全館空調
  • 間取り 198
    • 4LDK
    • 135.89m2(41.1坪)
    • 6,000
      13,500
    • 1F
    • 2F

    集中できる書斎や家族の気配を感じるセカンドリビングで、テレワークを楽しめる家

    • #狭小地
    • #ホームオフィス
    • #2階リビング
    • #全館空調
    • #インナーガレージ
  • 間取り 199
    ELAVie
    • 5LDK~
    • 110.44m2(33.4坪)
    • 11,750
      9,750
    • 1F
    • 2F

    ウォークスルーできるクローゼットと洗面室が、毎日の支度をスムーズにする平屋

    • #ひろびろLDK
    • #収納充実
    • #全館空調
    • #吹抜
  • 間取り 200
    • 4LDK
    • 113.83m2(34.4坪)
    • 7,250
      11,000
    • 1F
    • 2F

    共働きにうれしいサーキュレーション家事動線と適材適所収納の家

    • #家事がラク
    • #大開口
  • 間取り 201
    • ~3LDK
    • 88.88m2(26.9坪)
    • 7,000
      7,750
    • 1F
    • 2F

    すべての部屋に南からの光が差し込む、暖かさを感じる家

    • #家事がラク
  • 間取り 202
    • ~3LDK
    • 97.37m2(29.5坪)
    • 8,000
      7,500
    • 1F
    • 2F

    在宅勤務の出来る、明るく開放的なLDKがある家

    • #家事がラク
    • #全館空調
  • 間取り 203
    • 4LDK
    • 106.82m2(32.3坪)
    • 8,500
      8,500
    • 1F
    • 2F

    あえてのリビングイン階段がポイント、ひろびろLDKで家族を迎える家

    • #家事がラク
    • #ホームオフィス
  • 間取り 204
    • 4LDK
    • 114.99m2(34.8坪)
    • 7,500
      9,750
    • 1F
    • 2F

    2階のファミリーリビングやゆとりのルーフバルコニーで、おうち時間を楽しめる家

    • #家事がラク
    • #ホームオフィス
    • #2階リビング
    • #全館空調
  • 間取り 205
    • ~3LDK
    • 104.13m2(31.5坪)
    • 7,250
      7,750
    • 1F
    • 2F

    収納スペース充実、withコロナ時代のホームオフィス付き都市型住宅

    • #家事がラク
    • #ひろびろLDK
    • #大開口
  • 間取り 206
    • ~3LDK
    • 111.95m2(33.9坪)
    • 7,750
      7,750
    • 1F
    • 2F

    ゆとりのLDKとルーフバルコニーで家族とつながる住まい

    • #家事がラク
    • #大開口
    • #ホームオフィス
    • #収納充実
  • 間取り 207
    • ~3LDK
    • 109.86m2(33.2坪)
    • 8,750
      7,250
    • 1F
    • 2F

    空気の質までこだわった、家族にやさしい大開口の家

    • #大開口
    • #全館空調
  • 間取り 208
    ELAVie
    • ~3LDK
    • 107.35m2(32.5坪)
    • 15,250
      8,500
    • 1F
    • 2F

    スペースを上手に有効活用、たっぷり収納できる平屋の家

    • #ひろびろLDK
    • #収納充実
    • #全館空調
  • 間取り 209
    • 4LDK
    • 115.99m2(35.1坪)
    • 西
    • 8,750
      7,250
    • 1F
    • 2F

    暖かい生活をみんなで、ひろびろルーフバルコニーのある家

    • #全館空調
  • 間取り 210
    • 4LDK
    • 126.39m2(38.2坪)
    • 9,250
      8,500
    • 1F
    • 2F

    便利な家事動線とたっぷりの収納量で、すっきり暮らせる毎日を叶える家

    • #家事がラク
    • #ひろびろLDK
    • #収納充実
    • #全館空調
  • 間取り 211
    • ~3LDK
    • 99.38m2(30.1坪)
    • 5,500
      9,750
    • 1F
    • 2F

    コンパクトな間口にスマートな動線計画で、すっきり暮らす毎日を叶える家

    • #狭小地
  • 間取り 212
    • ~3LDK
    • 93.44m2(28.3坪)
    • 4,500
      10,250
    • 1F
    • 2F

    コンパクトな間口ながらも、効率的な家事動線と大容量の収納を確保した家

    • #狭小地
    • #全館空調
  • 間取り 213
    • 4LDK
    • 121.88m2(36.9坪)
    • 10,000
      6,000
    • 1F
    • 2F

    LDK+スマート和室、キッチンからすべてが見渡せるゆとりある家

    • #家事がラク
    • #狭小地
  • 間取り 214
    • 4LDK
    • 122.85m2(37.2坪)
    • 17,000
      8,500
    • 1F

    直線的な家事動線と、家中たっぷり収納で暮らしが整う平屋の家

    • #家事がラク
    • #ホームオフィス
  • 間取り 215
    • 4LDK
    • 107.79m2(32.6坪)
    • 7,000
      9,750
    • 1F
    • 2F

    ふとしたときに腰をかけたくなる床の間、南面大開口LDKのある家

  • 間取り 216
    • ~3LDK
    • 71.52m2(21.6坪)
    • 9,750
      7,250
    • 1F

    2人でゆとりのある暮らしを、大空間・大開口LDKのある平屋の家

    • #ひろびろLDK
    • #大開口
  • 間取り 217
    • 4LDK
    • 99.11m2(30坪)
    • 6,000
      9,750
    • 1F
    • 2F

    家事がラクになる動線で共働きのご夫婦にぴったりのコンパクト都市型住宅

    • #狭小地
    • #ホームオフィス
    • #収納充実
    • #2階リビング
    • #全館空調
  • 間取り 218
    • ~3LDK
    • 70.85m2(21.4坪)
    • 7,750
      9,750
    • 1F

    1人の時間も、2人の時間も、大開口LDKのある平屋の家

  • 間取り 219
    • ~3LDK
    • 101.42m2(30.7坪)
    • 5,750
      10,000
    • 1F
    • 2F

    土間つづきの玄関クローゼットがある30坪の家

    • #狭小地
  • 間取り 220
    • 5LDK~
    • 114.96m2(34.8坪)
    • 9,750
      7,250
    • 1F
    • 2F

    リビングと連続した多目的和室は、子育て・家事・ワークスペースにぴったり

    • #家事がラク
    • #ひろびろLDK
    • #大開口
  • 間取り 221
    • ~3LDK
    • 108.08m2(32.7坪)
    • 6,000
      9,750
    • 1F
    • 2F

    一直線にまとめた水廻りで家事負担を軽減、玄関クローゼットのある家

    • #家事がラク
    • #大開口
    • #狭小地
    • #収納充実
    • #全館空調
  • 間取り 222
    • ~3LDK
    • 110.49m2(33.4坪)
    • 8,500
      7,500
    • 1F
    • 2F

    全部屋南向き、ゆとりあるLDK+スマート和室のある家

    • #全館空調
  • 間取り 223
    • ~3LDK
    • 108.25m2(32.7坪)
    • 西
    • 13,500
      9,750
    • 1F
    • 2F

    仕切らない空間設計が実現した開放感いっぱいの平屋

    • #家事がラク
    • #ひろびろLDK
    • #大開口
    • #収納充実
    • #全館空調
  • 間取り 224
    • ~3LDK
    • 109.64m2(33.2坪)
    • 4,500
      13,500
    • 1F
    • 2F

    コンパクトな建物間口に、インナーガレージや吹抜など、ゆとりの工夫を施した家

    • #狭小地
    • #全館空調
    • #吹抜
    • #インナーガレージ
  • 間取り 225
    • 4LDK
    • 115.32m2(34.9坪)
    • 7,500
      9,750
    • 1F
    • 2F

    便利な家事動線と、集中できる個室の書斎が、毎日の家事と仕事を効率UPする家

    • #家事がラク
    • #ホームオフィス
    • #2階リビング
    • #全館空調
  • 間取り 226
    • 4LDK
    • 117.27m2(35.5坪)
    • 6,000
      10,250
    • 1F
    • 2F

    アイランドキッチンを家の中心に、暮らしを楽しむ家

    • #狭小地
    • #収納充実
  • 間取り 227
    ELAVie
    • 4LDK
    • 136.33m2(41.2坪)
    • 16,000
      11,000
    • 1F

    たっぷり収納ですっきり片付く、住み心地にこだわった平屋

    • #ひろびろLDK
    • #大開口
    • #収納充実
  • 間取り 228
    ELAVie
    • 4LDK
    • 119.4m2(36.1坪)
    • 9,250
      8,250
    • 1F
    • 2F
    • 3F

    アイランドキッチンが主役の、友人を招きたくなる家

    • #家事がラク
    • #ひろびろLDK
    • #大開口
    • #ホームオフィス
    • #収納充実
    • #全館空調
  • 間取り 229
    ELAVie
    • 4LDK
    • 113.67m2(34.4坪)
    • 7,750
      10,750
    • 1F
    • 2F

    大きなバルコニーを備えた、在宅時間を豊かにする家

    • #ホームオフィス
    • #全館空調
    • #吹抜
  • 間取り 230
    ELAVie
    • ~3LDK
    • 106.07m2(32.1坪)
    • 西
    • 7,250
      7,500
    • 1F
    • 2F
    • 3F

    陽射しのたっぷり入る大空間のリビングダイニングが、家族を包み込む家

    • #家事がラク
    • #ホームオフィス
    • #収納充実
    • #全館空調
  • 間取り 231
    • 4LDK
    • 118.61m2(35.9坪)
    • 6,000
      10,000
    • 1F
    • 2F

    吹抜ダイニングが気持ち良い、家族が自然と集う家

    • #家事がラク
    • #狭小地
  • 間取り 232
    • 4LDK
    • 119.86m2(36.3坪)
    • 8,750
      7,250
    • 1F
    • 2F

    のびのびできる自由空間が心地良い、やさしい光が溢れる大開口の家

    • #大開口
    • #全館空調
  • 間取り 233
    • 4LDK
    • 152.46m2(46.1坪)
    • 西
    • 9,750
      6,000
    • 1F
    • 2F
    • 3F

    全部屋南向き、フロアごとに使い分けるインナーガレージのある家

    • #家事がラク
    • #狭小地
    • #2階リビング
    • #全館空調
    • #インナーガレージ
  • 間取り 234
    • 4LDK
    • 115.93m2(35.1坪)
    • 西
    • 8,500
      8,000
    • 1F
    • 2F

    暮らしの中心はLDK、室内干しスペースのある生活動線を考えた家

    • #家事がラク
  • 間取り 235
    ELAVie
    • ~3LDK
    • 70.04m2(21.2坪)
    • 5,500
      14,750
    • 1F
    • 2F

    たっぷり小屋裏収納と、吹抜リビングのある平屋の家

    • #大開口
    • #狭小地
    • #収納充実
    • #吹抜
  • 間取り 236
    • ~3LDK
    • 102.72m2(31.1坪)
    • 7,250
      10,250
    • 1F
    • 2F

    プライベートガーデンとダイニングがつながる、アウトドアを楽しめる家

    • #ひろびろLDK
    • #大開口
  • 間取り 237
    • 4LDK
    • 121.23m2(36.7坪)
    • 西
    • 9,250
      7,750
    • 1F
    • 2F

    ひろびろとしたLDKと大きなバルコニーでゆとりある暮らしができる家

    • #ひろびろLDK
    • #大開口
    • #ホームオフィス
    • #収納充実
  • 間取り 238
    ELAVie
    • 4LDK
    • 132.41m2(40.1坪)
    • 9,750
      7,500
    • 1F
    • 2F
    • 3F

    ひろびろとしたLDKと開放感のある吹抜で暮らしも快適に。

    • #ひろびろLDK
    • #大開口
    • #ホームオフィス
    • #収納充実
    • #全館空調
    • #吹抜
  • 間取り 239
    • 4LDK
    • 120.74m2(36.5坪)
    • 西
    • 12,250
      5,500
    • 1F
    • 2F

    LDKを広くする廊下レスの設計。2F寝室は全室南面で明るい家

    • #狭小地
  • 間取り 240
    • 4LDK
    • 113.54m2(34.3坪)
    • 9,750
      7,250
    • 1F
    • 2F

    玄関をくぐればLDKが広がる、家族の会話を活発化させる家

    • #大開口
    • #ホームオフィス
    • #全館空調
  • 間取り 241
    • ~3LDK
    • 106.66m2(32.3坪)
    • 5,000
      10,500
    • 1F
    • 2F

    間口5.5m、ゆとりあるLDKで生活する家

    • #狭小地
  • 間取り 242
    • ~3LDK
    • 108.22m2(32.7坪)
    • 8,500
      8,000
    • 1F
    • 2F

    大容量の収納スペースのおかげで、部屋の中はいつもすっきり

    • #ひろびろLDK
    • #収納充実
  • 間取り 243
    ELAVie
    • ~3LDK
    • 97.18m2(29.4坪)
    • 11,250
      9,750
    • 1F
    • 2F

    開放的な大空間で、年中快適に暮らす平屋

    • #家事がラク
    • #大開口
    • #収納充実
    • #全館空調
  • 間取り 244
    • ~3LDK
    • 103.18m2(31.2坪)
    • 6,000
      8,500
    • 1F
    • 2F

    キッチンをぐるりと回れる家事動線とたっぷりの収納が、毎日を便利にする家

    • #家事がラク
    • #狭小地
  • 間取り 245
    • ~3LDK
    • 110.59m2(33.5坪)
    • 5,500
      9,750
    • 1F
    • 2F

    家族の会話が増えるリビングイン階段と大きなLDKのある住まい

    • #狭小地
    • #ホームオフィス
    • #2階リビング
    • #全館空調
  • 間取り 246
    • ~3LDK
    • 111.14m2(33.6坪)
    • 10,250
      6,000
    • 1F
    • 2F

    アイランドキッチンからの景色が魅力的、こだわりLDKのある家

    • #ひろびろLDK
    • #大開口
    • #狭小地
    • #収納充実
    • #全館空調
  • 間取り 247
    • 4LDK
    • 103.03m2(31.2坪)
    • 6,000
      9,750
    • 1F
    • 2F

    狭小地と感じさせないひろびろLDKとルーフバルコニーのある家

    • #狭小地
  • 間取り 248
    • ~3LDK
    • 92.18m2(27.9坪)
    • 5,500
      8,250
    • 1F
    • 2F

    ちょっとした一工夫でひろびろ使える、夢をかなえる狭小地の家

    • #狭小地
  • 間取り 249
    ELAVie
    • ~3LDK
    • 116.24m2(35.2坪)
    • 13,000
      9,750
    • 1F

    家事の負担を軽減し、健やかな暮らしを叶える平屋

    • #家事がラク
    • #収納充実
    • #全館空調
  • 間取り 250
    • ~3LDK
    • 97.24m2(29.4坪)
    • 西
    • 8,750
      6,250
    • 1F
    • 2F

    ただいま、お帰りの会話ができるリビングイン階段のある住まい

    • #狭小地
  • 間取り 251
    ELAVie
    • 4LDK
    • 116.89m2(35.4坪)
    • 8,750
      8,250
    • 1F
    • 2F
    • 3F

    ゆとりあるダイニング空間が優雅な食事時間を演出する家

    • #家事がラク
    • #大開口
    • #ホームオフィス
    • #収納充実
    • #全館空調
  • 間取り 252
    ELAVie
    • 4LDK
    • 114.24m2(34.6坪)
    • 7,750
      8,250
    • 1F
    • 2F

    服も靴もたくさん収納できる、おしゃれ好きな家族の家

    • #家事がラク
    • #ひろびろLDK
    • #大開口
    • #収納充実
    • #全館空調
    • #吹抜
  • 間取り 253
    • ~3LDK
    • 117.56m2(35.6坪)
    • 8,250
      7,750
    • 1F
    • 2F

    ゆとりある玄関ホールにひろびろLDK、収納力にも配慮した快適な住まい

    • #家事がラク
    • #大開口
    • #ホームオフィス
  • 間取り 254
    • 4LDK
    • 117.51m2(35.5坪)
    • 西
    • 10,250
      7,250
    • 1F
    • 2F

    親とも同居できる4LDK。主寝室に書斎コーナーとビッグバルコニーを配置

    • #ホームオフィス
  • 間取り 255
    ELAVie
    • 4LDK
    • 102.96m2(31.1坪)
    • 6,000
      9,500
    • 1F
    • 2F
    • 3F

    キッチンから庭が見渡せる、視線の抜けと家事動線にこだわった家

    • #家事がラク
    • #ホームオフィス
    • #収納充実
    • #全館空調
  • 間取り 256
    • 4LDK
    • 116.29m2(35.2坪)
    • 7,250
      9,750
    • 1F
    • 2F

    柱レス設計で、約24帖の大空間を好きにデザインできます

    • #収納充実
  • 間取り 257
    • 4LDK
    • 111.1m2(33.6坪)
    • 5,500
      12,250
    • 1F
    • 2F

    全館空調で年中心地良い室内環境と各所に設けた収納で暮らしをより快適に

    • #狭小地
    • #全館空調
  • 間取り 258
    • ~3LDK
    • 101.83m2(30.8坪)
    • 西
    • 9,750
      6,000
    • 1F
    • 2F

    すべての部屋が南向き、明るい陽射しにつつまれて家族が暮らせる家

    • #狭小地
    • #収納充実
  • 間取り 259
    • 4LDK
    • 117.38m2(35.5坪)
    • 西
    • 11,000
      6,000
    • 1F
    • 2F

    各フロアに書斎やデスクスペースを設けた、共働きのテレワークを快適にする家

    • #狭小地
    • #ホームオフィス
    • #2階リビング
    • #全館空調
  • 間取り 260
    • ~3LDK
    • 98.5m2(29.8坪)
    • 6,000
      8,250
    • 1F
    • 2F

    必要なところに必要な収納を、すっきり暮らせる家

    • #家事がラク
    • #狭小地
    • #ホームオフィス
    • #全館空調
  • 間取り 261
    ELAVie
    • ~3LDK
    • 95.17m2(28.8坪)
    • 9,250
      5,750
    • 1F
    • 2F
    • 3F

    ひろびろとした土間収納を設けた、アウトドア好きな家族の家

    • #収納充実
    • #全館空調
    • #吹抜
  • 間取り 262
    • ~3LDK
    • 119.38m2(36.1坪)
    • 8,750
      7,750
    • 1F
    • 2F

    サッとすぐに収納できる動線設計、日常の家事をサポートする家

    • #家事がラク
    • #大開口
    • #ホームオフィス
    • #収納充実
  • 間取り 263
    • 4LDK
    • 132m2(39.9坪)
    • 9,750
      8,000
    • 1F
    • 2F

    玄関クローゼットや家事室などの暮らしに役立つ部屋設計が魅力の家

    • #家事がラク
    • #ひろびろLDK
    • #ホームオフィス
    • #収納充実
  • 間取り 264
    • 5LDK~
    • 176.99m2(53.5坪)
    • 西
    • 9,750
      8,500
    • 1F
    • 2F
    • 3F

    内にひらけた窓が空間と家族をつなげるインナーガレージのある家

    • #収納充実
    • #2階リビング
    • #全館空調
    • #インナーガレージ
  • 間取り 265
    • ~3LDK
    • 98.44m2(29.8坪)
    • 4,500
      10,750
    • 1F
    • 2F

    間口5m、狭小地ならではの間取りを実現した家

    • #狭小地
  • 間取り 266
    • ~3LDK
    • 113.69m2(34.4坪)
    • 8,500
      7,750
    • 1F
    • 2F

    開放的な空間で家族一緒の時間を、ひろびろLDKのある家

    • #家事がラク
    • #ひろびろLDK
    • #ホームオフィス
    • #全館空調
  • 間取り 267
    • ~3LDK
    • 110.08m2(33.3坪)
    • 7,750
      8,000
    • 1F
    • 2F

    南LDKで明るく生活の出来る、家事動線をスムーズに考えた家

    • #家事がラク
    • #収納充実
  • 間取り 268
    • ~3LDK
    • 110.95m2(33.6坪)
    • 6,000
      9,250
    • 1F
    • 2F

    開放的な1階LDKと、2階水廻りの33坪の家

    • #狭小地
  • 間取り 269
    • ~3LDK
    • 100.99m2(30.5坪)
    • 6,000
      9,750
    • 1F
    • 2F

    家族で集まるアウトドア空間、ルーフバルコニーのある家

    • #ひろびろLDK
    • #狭小地
    • #全館空調
  • 間取り 270
    ELAVie
    • 4LDK
    • 109.37m2(33.1坪)
    • 7,250
      8,250
    • 1F
    • 2F

    1階でも2階でも、家族が自然に集う家

    • #家事がラク
    • #大開口
    • #収納充実
    • #全館空調
    • #吹抜
  • 間取り 271
    • 4LDK
    • 134.68m2(40.7坪)
    • 9,750
      9,750
    • 1F
    • 2F

    家族の帰りをむかえる、ひろびろとしたバルコニーのある家

    • #家事がラク
    • #ホームオフィス
    • #全館空調
  • 間取り 272
    • ~3LDK
    • 111.16m2(33.6坪)
    • 5,500
      10,000
    • 1F
    • 2F

    家族とコミュニケーションが取れる、リビングイン階段の家

    • #狭小地
  • 間取り 273
    • ~3LDK
    • 111.54m2(33.7坪)
    • 6,000
      9,500
    • 1F
    • 2F

    在宅勤務中にほっと一息、インナーバルコニーのある家

    • #狭小地
    • #ホームオフィス
  • 間取り 274
    • ~3LDK
    • 129.13m2(39.1坪)
    • 9,750
      7,250
    • 1F
    • 2F
    • 3F

    大開口バルコニーでさらに大きく広がる大空間、2階リビングの家

    • #家事がラク
    • #ひろびろLDK
    • #収納充実
    • #全館空調
  • 間取り 275
    • ~3LDK
    • 99.13m2(30坪)
    • 5,750
      10,600
    • 1F
    • 2F

    リビングイン階段からそれぞれの部屋へ、適度な距離感で暮らす家

    • #狭小地
  • 間取り 276
    • 4LDK
    • 99.13m2(30坪)
    • 5,500
      9,750
    • 1F
    • 2F

    約20帖の2階LDKスペース、部屋も家族も明るく暮らす都市型住宅

    • #狭小地
    • #2階リビング
    • #全館空調
  • 間取り 277
    • 4LDK
    • 115.73m2(35坪)
    • 7,750
      7,750
    • 1F
    • 2F

    連続開口の明るいリビングに家族が集まる家

    • #家事がラク
    • #大開口
  • 間取り 278
    ELAVie
    • ~3LDK
    • 100.14m2(30.3坪)
    • 7,000
      8,250
    • 1F
    • 2F
    • 3F

    リビングとダイニングそれぞれの空間で、家族思い思いの使い方を叶える家

    • #ホームオフィス
    • #収納充実
    • #全館空調
  • 間取り 279
    • 4LDK
    • 112.32m2(34坪)
    • 11,750
      6,000
    • 1F
    • 2F

    玄関はクローゼット付きですっきり。オープンなキッチンで子育てしやすい家

    • #大開口
  • 間取り 280
    • 4LDK
    • 139.86m2(42.3坪)
    • 西
    • 8,500
      7,000
    • 1F
    • 2F
    • 3F

    都市部でも朝日が当たる2階LDK。アクセスしやすいパントリーで家事が楽な動線も実現

    • #家事がラク
    • #大開口
    • #収納充実
    • #2階リビング
  • 間取り 281
    • ~3LDK
    • 123.08m2(37.2坪)
    • 9,250
      8,500
    • 1F
    • 2F

    すべての部屋が南向き、便利な家事動線とたっぷり収納を確保した家

    • #家事がラク
    • #ひろびろLDK
    • #大開口
  • 間取り 282
    • ~3LDK
    • 116.75m2(35.3坪)
    • 6,000
      11,000
    • 1F
    • 2F

    全ての部屋が南向き、1日を通して、暮らしが明るい陽射しに包まれる家

    • #狭小地
    • #ホームオフィス
    • #2階リビング
    • #全館空調
  • 間取り 283
    ELAVie
    • 4LDK
    • 123.21m2(37.3坪)
    • 8,750
      9,500
    • 1F
    • 2F

    リビング空間を明るく彩る、大開口を備えた家

    • #家事がラク
    • #ひろびろLDK
    • #大開口
    • #ホームオフィス
    • #収納充実
    • #全館空調
    • #吹抜
  • 間取り 284
    • 4LDK
    • 117.86m2(35.7坪)
    • 10,250
      7,250
    • 1F
    • 2F

    南に面したLDK。約4mの連続大開口があるリビングが開放的

    • #家事がラク
    • #ひろびろLDK
    • #大開口
    • #ホームオフィス
  • 間取り 285
    • ~3LDK
    • 108.2m2(32.7坪)
    • 9,000
      9,750
    • 1F
    • 2F

    空気の質にこだわった、暮らしやすいシンプルな家

    • #狭小地
    • #全館空調
  • 間取り 286
    ELAVie
    • ~3LDK
    • 119.38m2(36.1坪)
    • 16,500
      8,500
    • 1F

    大開口LDKでさらにひろびろとした、収納たくさん平屋の家

    • #家事がラク
    • #ひろびろLDK
    • #大開口
    • #収納充実
    • #全館空調
  • 間取り 287
    • ~3LDK
    • 115.43m2(34.9坪)
    • 7,750
      8,000
    • 1F
    • 2F

    洗面からWIPへのアクセスと共有WICがある洗濯物ラクラク間取り

    • #家事がラク
    • #大開口
    • #ホームオフィス
    • #収納充実
  • 間取り 288
    • ~3LDK
    • 122.7m2(37.1坪)
    • 3,000
      13,500
    • 1F
    • 2F
    • 3F

    都市部でも明るいダイニングキッチンを実現する吹抜のある間取り設計

    • #狭小地
    • #ホームオフィス
    • #2階リビング
    • #全館空調
  • 間取り 289
    • ~3LDK
    • 120.74m2(36.5坪)
    • 10,250
      7,250
    • 1F
    • 2F

    すべての部屋が南向き、ひろびろとしたリビングダイニングに家族が集まる家

    • #家事がラク
    • #ひろびろLDK
    • #収納充実
    • #全館空調
  • 間取り 290
    • ~3LDK
    • 112.04m2(33.9坪)
    • 7,750
      8,500
    • 1F
    • 2F

    日常生活をより豊かに、2way玄関で動線を考えた家

    • #家事がラク
    • #収納充実
  • 間取り 291
    • ~3LDK
    • 106.33m2(32.2坪)
    • 6,000
      9,750
    • 1F
    • 2F
    • 3F

    生活動線と収納の工夫で、毎日の暮らしに豊かさとゆとりを

    • #狭小地
    • #収納充実
  • 間取り 292
    • 4LDK
    • 150.78m2(45.6坪)
    • 8,250
      12,250
    • 1F
    • 2F

    2階のセカンドリビングとつながる吹抜が、家族のコミュニケーションを生む家

    • #家事がラク
    • #ひろびろLDK
    • #大開口
    • #収納充実
    • #全館空調
    • #吹抜
  • 間取り 293
    • ~3LDK
    • 96.6m2(29.2坪)
    • 10,500
      4,500
    • 1F
    • 2F

    間口5m、南に広がるLDKは明るく開放的なプラン

    • #狭小地
  • 間取り 294
    ELAVie
    • ~3LDK
    • 129.95m2(39.3坪)
    • 14,500
      9,750
    • 1F

    ゆったり収納で整った暮らしを、大空間・大開口LDKのある家

    • #ひろびろLDK
    • #大開口
    • #収納充実
    • #全館空調
  • 間取り 295
    • ~3LDK
    • 103.26m2(31.2坪)
    • 西
    • 10,000
      5,750
    • 1F
    • 2F

    約20帖の大空間LDKのある狭小地の家

    • #狭小地
  • 間取り 296
    • 4LDK
    • 113.11m2(34.2坪)
    • 5,500
      12,250
    • 1F
    • 2F
    • 3F

    玄関、階段下、ロフト随所に収納を、丁寧で洗練された暮らしをカタチに

    • #狭小地
    • #収納充実
  • 間取り 297
    ELAVie
    • 4LDK
    • 117.27m2(35.5坪)
    • 8,250
      9,500
    • 1F
    • 2F

    大きな吹抜が目を引く、和室でくつろぎたくなる家

    • #家事がラク
    • #ひろびろLDK
    • #ホームオフィス
    • #収納充実
    • #全館空調
    • #吹抜
  • 間取り 298
    • 4LDK
    • 122.68m2(37.1坪)
    • 9,750
      8,000
    • 1F
    • 2F

    リビング空間と回遊型動線で団らんと家事を両立した住まい

    • #家事がラク
    • #大開口
  • 間取り 299
    • 4LDK
    • 99.38m2(30.1坪)
    • 5,500
      9,750
    • 1F
    • 2F

    家事がしやすくなるようにキッチンを中心に設計した家

    • #ひろびろLDK
    • #狭小地
    • #全館空調
  • 間取り 300
    • ~3LDK
    • 96.88m2(29.3坪)
    • 6,000
      9,250
    • 1F
    • 2F

    セントラル収納のある暮らし

    • #狭小地
    • #ホームオフィス
  • 間取り 301
    • ~3LDK
    • 114.75m2(34.7坪)
    • 10,500
      10,000
    • 1F
    • 2F

    子育て家族が考えた理想の間取り

    • #家事がラク
    • #ひろびろLDK
    • #大開口
    • #ホームオフィス
    • #収納充実
    • #全館空調
    • #吹抜