3階建だったら、
どんな家を建てようか。
開放的なリビングも、憧れの中庭も、
趣味の部屋だって夢じゃない。
”プラスワン”で、
もっと豊かで自由な暮らしが広がる。
![]()

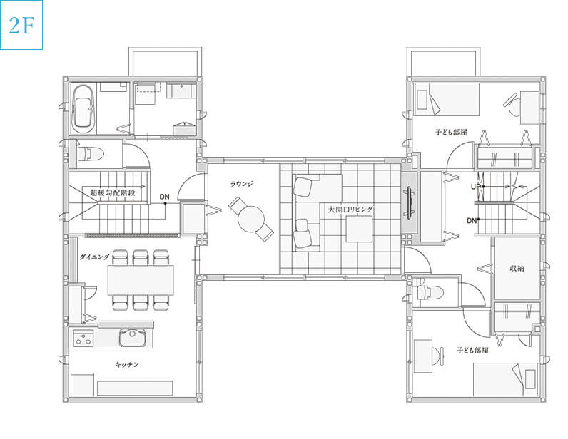
3階建が生み出す
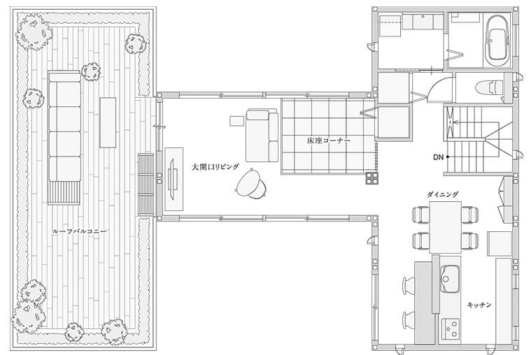
大開口、大空間の開放感。
大きな吹き抜けがある開放的なリビング。
四季の移り変わりを感じる大きな窓。
光と風にあふれた、贅沢で心地よい暮らしを
三階建ならではのゆとりが叶えます。



欲しい場所に、
欲しいサイズの
窓と空間を
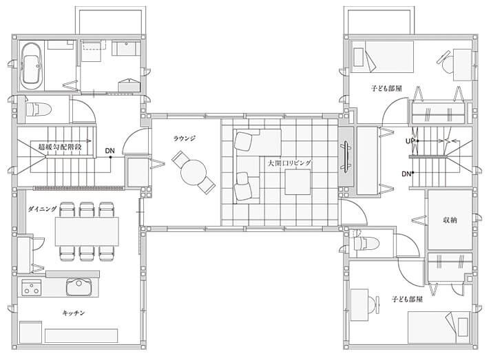
トヨタホーム独自の鉄骨構造なら、縦にも横にも大空間を実現可能。吹き抜けや壁のないリビングダイニング、一面の大窓など、視界が広がる自由な設計が叶います。スペースを最大限に活用した大開口は、この上ないゆとりを生み出します。

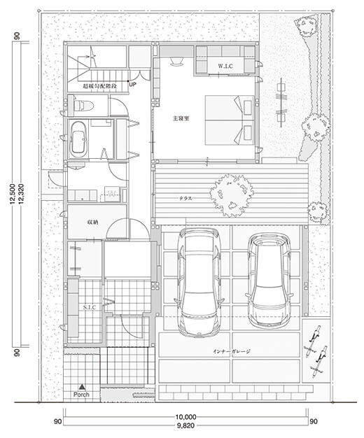
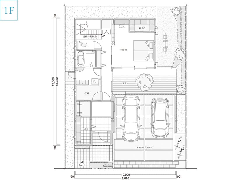
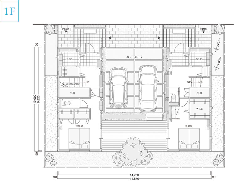
並列2台
駐車もできる
広々ガレージ
3階建とトヨタホーム のユニット工法を生かした、二台並列可能な門型のインナーガレージ。広いスペースは、休日にバーベキューをしたり植物を育てたりと多目的に使えるほか、室内とつながる設計で荷物の積み下ろしも楽チン。クルマと住まいが近づく、家族にやさしい空間に。

限られた空間が
広く感じる、
3階建という選択。
周りに建物の多い場所でも、
開放的な家づくりがしたい。
3階建なら、ゆったりくつろげるバルコニーや縦の広がりを生かしたリビングなど、広々としたプライベート空間が叶います。



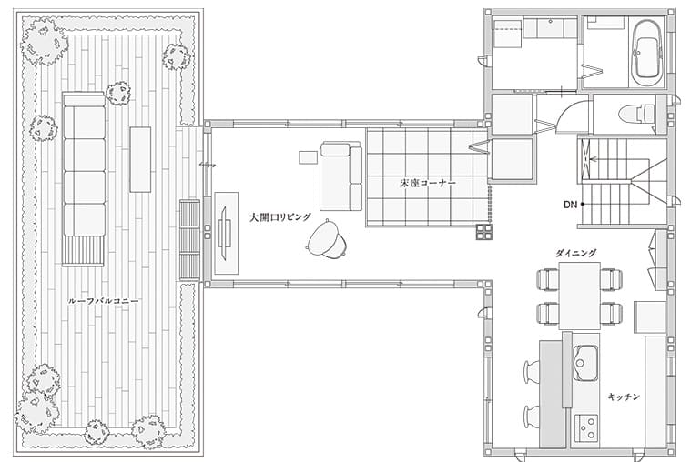
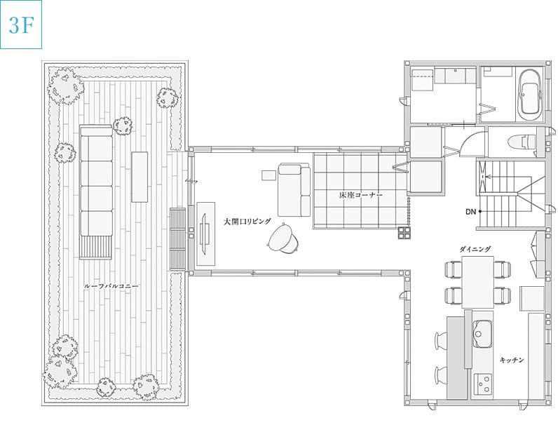
ユニットだからこそ可能なビックバルコニー
ユニット構造のサイズを最大限に活用した、大きくて広いバルコニーを作ることができるのも、3階建ならでは。屋内外の段差がないフラットバルコニーや、階下に光と風を招くグレーチングバルコニーなど選択肢は様々。ハイウォールルーバーで外からの視線も気になりません。

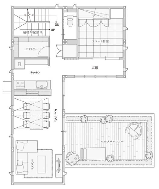
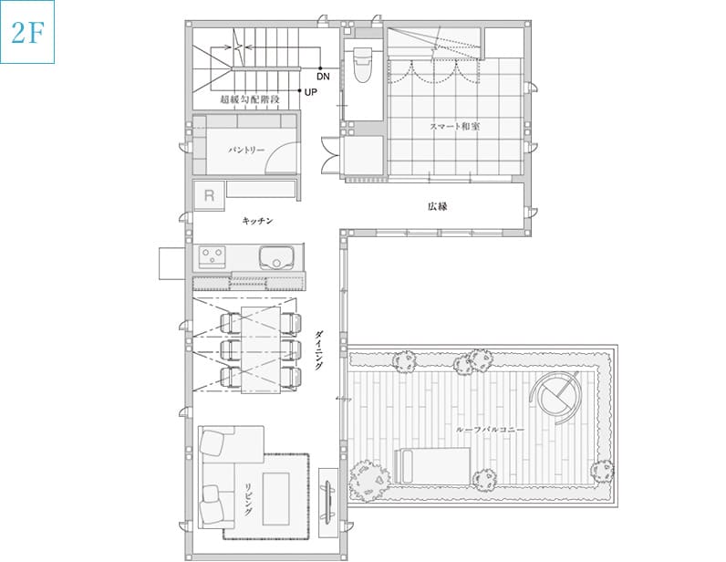
縦長の空間を生かすスキップフロア
1.5階や2.5階を作る層設計で縦の空間を有効活用した「スキップフロ
ア」。限られた面積でも空間の広がりが生まれると同時に、部屋全体に光を取り込み、風を行き渡らせることができます。
上下階が自然につながり、自然と家族が集う広々としたリビングに。

3階建が叶える
豊かな二世帯住宅の暮らしと
プラスαの趣味空間。
フロアが一つ増えることで
居住空間にも間取りにも、ゆとりが生まれる。
3層に分かれたフロアが、二世帯住宅でも独立した生活空間を確保。趣味部屋も叶えるプラスαの空間が生まれます。



3フロアが叶えるプラスαの自由な空間
暮らしの中心を2階と3階にすることで、1階にプラスαの空間が生まれます。十分な住空間を確保しながら、趣味や遊びの空間を作ったり、たっぷりの収納スペースを設けたりと「理想」を実現させられる余裕も3階建てのゆとりがなせる技です。

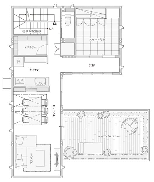
将来の不安を希望に変える3階建
安全でストレスなく昇り降りができる「超緩勾配階段」や、ライフステージの変化を想定した空間設計など、トヨタホームならではの住まいづくりで、子どもからお年寄りまで快適な暮らしを提案。将来も安心して暮らせる三階建の家を実現します。











































