「ガレージハウス」とは、住宅の1階部分に駐車スペースを組み込んだ間取りを持つ家のことです。家の中から車を眺められるうえ、いつでもメンテナンスできるのが特徴で、車好き・バイク好きから高い人気を集めています。
一方、騒音や換気、間取りには工夫が必要です。後悔しないためにも、どんなメリットやデメリットがあるのかを押さえてから検討したいものです。
この記事ではガレージハウスの基本からメリット・デメリット、さらにおすすめの間取り例まで解説します。建築を検討している方はぜひ参考にしてください。
ガレージハウスとは?
-scaled.jpg)
ガレージハウスとは、住宅の1階部分にガレージ(駐車スペース)を組み込んだ家のことです。狭小地では駐車スペースを確保しづらいといった問題が発生しがちですが、1階部分をガレージにすればその問題を解決できます。特に土地代が高額な都市部で多く採用されるスタイルです。
ガレージハウスは、2階建て、3階建て、平屋など、住宅の形状を問いません。いずれの場合もガレージ部分を「ビルトインガレージ」または「インナーガレージ」と呼びます。どちらも「住宅に内蔵された駐車スペース」を意味し、大きな違いはありません。本記事では「ビルトインガレージ」で統一して解説します。
ビルトインガレージはシャッター付きのクローズドタイプが一般的で、単なる駐車場にとどまらず、多目的に活用できるのが魅力です。では、ガレージハウスを建てることで得られる具体的なメリットを見ていきましょう。
ガレージハウスのメリット

それでは早速、ガレージハウスを建てるメリットについて紹介します。
愛車をいたずらや雨風、紫外線から守れる
ガレージハウスでは、シャッター付きのクローズドタイプが多いため、シャッターを閉めれば雨風や紫外線、いたずらから愛車をしっかり守れます。
防犯性が高く、盗難リスクを抑えられる点も大きな魅力です。紫外線によるボディの色あせやヘッドライトの黄ばみ防止にも役立ち、車の劣化対策としても効果的です。
狭小地でも駐車スペースが確保できる
狭小地には明確な定義はありませんが、一般的には敷地面積がおよそ15坪程度の土地を指し、その土地に建てられる住まいを「狭小住宅」と呼びます。
狭小住宅では、建ぺい率を最大限に使って建物を建てるケースが多く、地上に駐車スペースを設けるのが難しいのが実情です。そこで有効なのが「ガレージハウス」です。居住空間を2階、3階に配置することで、1階部分をまるごと駐車場として活用できます。
なお、車を停めるための広さは、1台なら約5坪、2台なら約10坪が目安とされています。ガレージハウスであれば、こうした広さを狭小地でも十分に確保することが可能です。
狭小地に建てる3階建てビルトインガレージにつきまして、詳しくはこちらをご覧ください。
駐車スペースだけではなく、家族にとっても便利な空間になる
ビルトインガレージは車好きにとっては最高の空間となり得ますが、家族にとっても使いやすい、便利なスペースとなります。
例えば車が停まっていないガレージは、子どもの遊び場にも変身します。縄跳びや夏のプール遊びにも大活躍します。さらに、テーブルやイスを用意し、友だちを招いてホームパーティーをしたり、シャッターを開放してBBQも楽しんだりすることもできます。このように、家族にとって利便性が高い点もガレージハウスの魅力です。
ガレージ動線がコンパクトにまとまる
ガレージハウスでは、工夫次第でガレージ動線をコンパクトにまとめられます。例えばビルトインガレージとダイニングキッチンの入り口をつなげておけば、買い物した荷物を運び入れるのに手間取りません。
雨が降ったときも、濡れずに出入りできることもメリットです。小さい子どもをチャイルドシートに乗せる際も、通常ならガレージに行くまで、あるいは乗降車時に濡れてしまいますが、ガレージハウスなら濡れずに済みます。同じように、車イスの方もビルトインガレージがあれば、間取りの工夫次第で乗り入れが楽になるでしょう。
このように、あらかじめ動線を考えた間取りにすることがポイントです。
容積率が緩和される
ビルトインガレージの床面積が延べ床面積の5分の1以下なら、その部分は延べ床面積に含まれません。容積率の緩和措置が受けられるため、ガレージをつくっても居住スペースが減らないメリットがあります。
ガレージハウスのデメリットと注意点
ガレージハウスにはメリットが多いものの、ガレージを住宅の内部に組み込むという特性において、注意すべき点もあります。後悔しないためにも、デメリットをしっかり押さえておきましょう。
騒音や排気ガスでトラブルになるリスクがある
ガレージにシャッターを設置すると、種類によっては音が響きやすく、深夜や早朝の出入りでは近隣との騒音トラブルにつながることがあります。車の出入り時間やシャッターのタイプは慎重に検討しましょう。
また、24時間、車のメンテナンスができるとはいえ、ビルトインガレージ内でエンジンをかけると振動が2階部分に響くこともあります。子ども部屋や寝室を上階に配置しない、天井に防音材を使うなどの工夫が必要です。
さらに、排気ガスがこもらないよう大型換気扇の設置も欠かせません。換気不足は居室へのガス流入につながるため要注意です。
建築費用が高くなりやすい
ガレージハウスは車の出し入れに大開口部が必要なため、構造強度を高める工夫が欠かせません。そのため木造ではなく鉄骨造を選ぶケースも多く、建築費用が割高になりやすい傾向があります。
とはいえ、鉄骨造にすることで耐震性は確保できるため、安心して暮らせる点は大きなメリットです。
ガレージハウスの間取り実例を紹介!
ガレージハウスではどんな間取りがあるのでしょうか。ここでは間取り実例を参考にして、自分たちのガレージハウスのイメージを膨らませてみましょう。
なお、間取りを決める際の注意点につきまして、詳しくはこちらをご覧ください。
その他トヨタホームのビルトインガレージのある家の建築実例は、こちらをご覧ください。
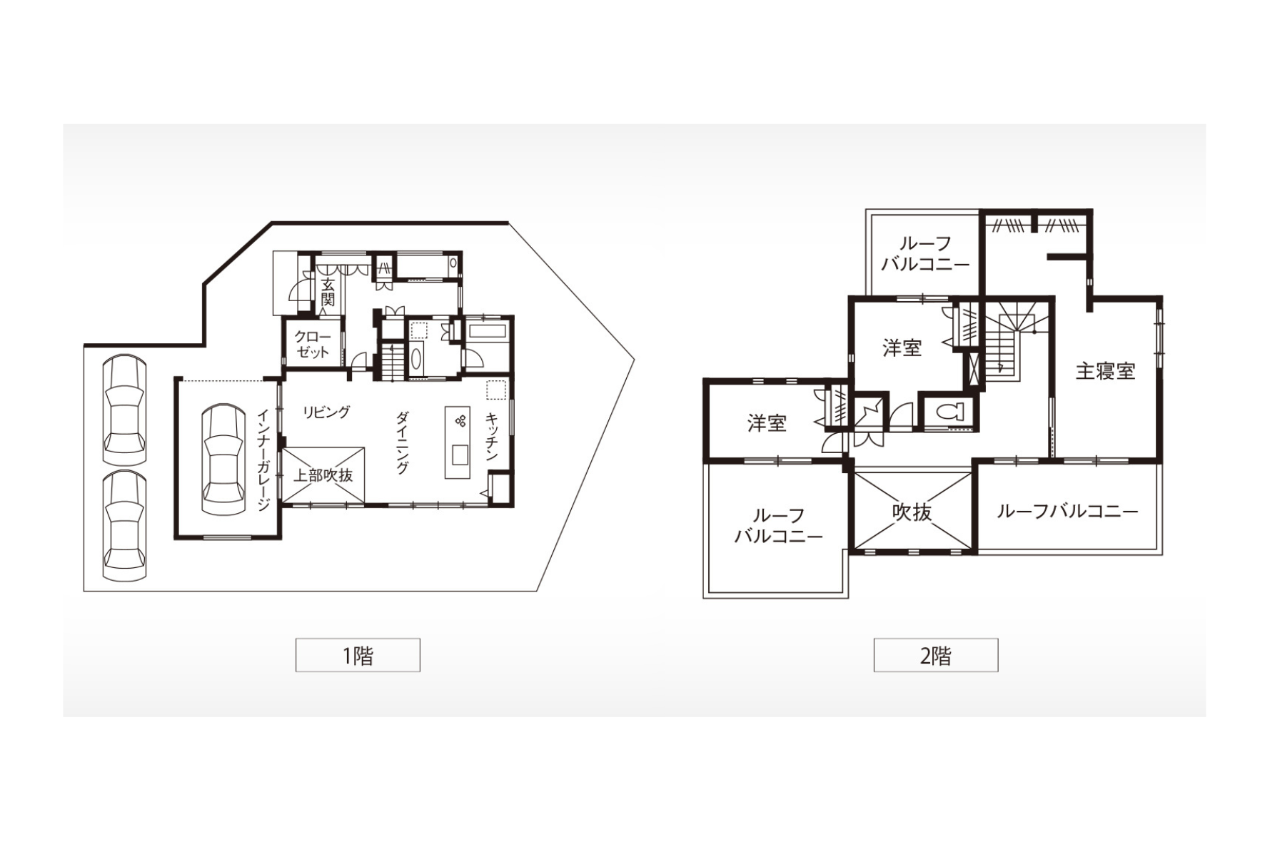
【34.8坪】広々リビングが魅力のガレージハウス
延べ床面積114.92m2(34.8坪)、2LDKの平屋タイプです。ガレージの隣に24.8畳の広々としたLDKを配置し、玄関にはメインの出入り口の他に、ガレージに通じる勝手口も設置しています。またLDKを挟んでガレージから少し遠いところに主寝室と子ども部屋を設けることで、エンジンやシャッターの音対策も万全。夫婦と子ども1人の3人家族におすすめの間取りです。
【34.8坪】広々リビングが魅力のガレージハウスの詳細はこちら
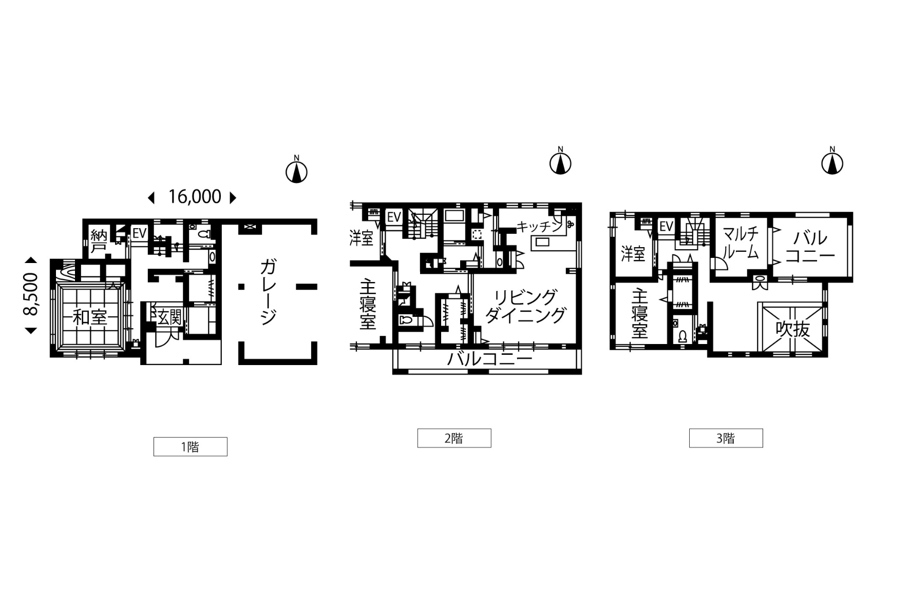
【49.7坪】2階LDKのあるガレージハウス
延べ床面積164.34m2(49.7坪)、3LDKで2階建てタイプの間取りです。日当たりと周囲の視線に配慮した、2階南側の広いLDKが特徴です。2階北側には、家族全員でも動きやすいゆったりとした洗面脱衣室を配置しました。1階部分の北側にビルトインガレージ、南側に主寝室と子ども部屋2つを作り、1年中明るくさらに冬でも暖かな間取りを実現しています。
建築実例で紹介!理想のガレージハウス10選
ガレージハウスは、愛車を守るだけでなく、暮らしや趣味の幅を広げる多彩な設計が可能です。ここでは、トヨタホームが手がけた実例の中から、個性豊かな10件を厳選して紹介します。
趣味も家族時間も叶える遊び心満載のガレージハウス

愛車を守るだけでなく、ダーツやゴルフ、スノーボードなど多彩な趣味を満喫できるインナーガレージを備えた住まいです。床には水洗い可能な素材を採用しており、泥や油汚れも簡単に洗い流せるため、DIYやアウトドア用品のメンテナンスも最適です。
さらに、豊富に設けられたコンセントは、電動工具やEV車の充電はもちろん、趣味の幅を広げる電化製品の使用にも対応しています。リビングからガレージを眺められる大きな窓と中庭の設計により、屋内外の一体感と開放感が実現できます。
「車を守る場所」にとどまらず、暮らしと趣味を広げるガレージハウスの魅力を体現した好例といえるでしょう。
最大7台駐車可能!重厚感と安心感のある大型ガレージハウス

最大7台の車を収容できる大型インナーガレージを備えたガレージハウスです。広々としたガレージスペースは、複数台を所有するご家庭はもちろん、来客時にも余裕のある駐車環境を実現します。
また、停電時には車が電源となる「クルマde給電」で電力をまかなえる先進的な仕組みも採用しています。災害時にも安心して暮らせる強さが魅力です。屋内からのアクセスもスムーズで、荷物の積み下ろしや日常の移動も効率的に行えるでしょう。
さらに、深い軒とダウンライトを組み合わせた外観は、昼夜を問わず高級感と落ち着きを演出し、ガレージを含めた邸宅全体の美しさを引き立てています。
※参考:トヨタ クルマから電気を、トヨタの給電 | クルマde給電 | トヨタ自動車WEBサイト
車と暮らしが調和するスタイリッシュなガレージハウス

リビングや和室の窓越しに車が映り込み、日常の中にさりげなく「車との時間」が息づく設計が魅力です。車をインテリアの一部として楽しめるよう、照明計画にも徹底的にこだわり、夜には愛車を美しく引き立てるギャラリーのような空間へと変わります。
また、電動工具やメンテナンス器具を使いやすいようコンセントの配置にも工夫されており、DIYや車いじりを快適に行えます。賃貸住宅では叶えられなかった趣味の時間を、自宅で存分に楽しめるのも大きな魅力です。
ガレージを家の一部としてデザインに組み込むことで、趣味と生活、家族の時間を自然につなぎ、暮らしをより豊かにする住まいになっています。
世代を超えて安心!バリアフリー対応のガレージハウス

インナーガレージにはバリアフリー設計が施され、将来を見据えた安全で安心な使い勝手を実現しています。屋内と直結した配置により、雨の日の乗降や荷物の出し入れもスムーズです。
さらに、ガレージからスロープでホームエレベーターへ直結しているため、外に出ることなく快適に移動できます。車を守る空間であると同時に、遊び心のある設計が取り入れられており、多世代で楽しめる工夫も充実しています。
お孫さまのアクティビティスペースとしても活用できるなど、家族全員の暮らしを支える実用性と楽しさを兼ね備えた、インナーガレージハウスの好例です。
ショールームのように愛車を愉しむガレージハウス

愛車を眺める至福の時間を設計の中心に据えたインナーガレージハウスです。6m×6mの広さを確保したガレージは、2台を並列で駐車できる強靭な構造を活かし、贅沢なショールーム空間を実現しています。
リビングからは、FIX窓越しに車を眺められる仕様で、「見せるガレージ」としての魅力を最大限に引き出しました。さらに、全館空調やZEH性能を備えているため、省エネと快適性を両立した上質な暮らしが叶います。
生活動線にも工夫があり、玄関や廊下から車へのアクセスがスムーズです。荷物の積み下ろしも効率的に行える、機能性とデザイン性を兼ね備えた住まいです。
2台並列もOK!車の出し入れがスムーズなガレージハウス

「車の出し入れが簡単で、本当に助かります」とS様も語る、柱のないインナーガレージを備えた住まいです。トヨタホームならではの構造設計により、柱がないため車の出し入れがスムーズに行えます。
2台を並列に収納できるゆとりある設計で、複数台を所有するご家庭でも安心です。さらに、ガレージから玄関ホールへ直結する動線が確保されているため、雨の日や荷物の多い日でも快適に移動できます。
暮らしの利便性を高めながら、空間の広がりを感じさせる工夫も満載です。インナーガレージを中心に据えた、機能性と快適さを兼ね備えた理想的なガレージハウスでしょう。
暮らしの入口に愛車を感じるガレージハウス

玄関ホールに足を踏み入れた瞬間、窓越しにインナーガレージの愛車が視界に飛び込む印象的なガレージハウスです。来客にとっては住まいの第一印象を特別なものにし、家族にとっても車と暮らしが自然につながる感覚を与えてくれます。
さらに、2〜3階を縦に貫く吹き抜け構造を採用し、家族同士のコミュニケーションを取りやすく設計されています。ゲストを迎える空間には、愛車の存在感がしっかりと組み込まれています。「入口からの風景」として暮らしに溶け込むデザインは、趣味と生活を違和感なく一体化させた住まいづくりのヒントとなる設計です。
ショーケースのように愛車を魅せるガレージハウス

リビングに隣接する約20㎡のインナーガレージは、まるでショーケースのように愛車を魅せるための特別な空間として設計されています。白い愛車を引き立てる黒壁を背景に、ダウンライトやスポットライトが映え、昼夜を問わず愛車の存在感を際立たせるでしょう。
さらに、ガレージとリビングの間には大きな掃き出し窓を設置しています。LDKにいながら愛車を眺める贅沢な時間が、日常に自然と溶け込む工夫が施されています。車を所有する喜びと暮らしの親和性が高まり、家族やゲストとの会話が自然と広がるインナーガレージハウスです。
細部までデザインにこだわったおしゃれなガレージハウス

外観とシャッターの格子デザインをそろえ、目地のラインまで計算されたインナーガレージを備えた住まいです。ガラスブロックやスケルトン階段を採用し、暗くなりがちなガレージ空間に自然光と抜け感を取り入れることで、明るくスタイリッシュな雰囲気を実現しました。
細部までご主人のこだわりが息づくガレージスペースは、「魅せる美しさ」と「暮らす心地よさ」を両立しています。さらに、二世帯住宅としての設計を意識しており、家族が自然に集まる場としても活躍します。玄関と一体化したシンプルなレイアウトが、車を愛する暮らしをより豊かに彩るインナーガレージハウスです。
趣味と暮らしをつなぐ+αを楽しむガレージハウス

ガレージの天井を高く設計し、自転車を車の上に積んだまま出し入れできるのが特徴です。趣味の動線にも配慮されており、使いやすさと移動のしやすさを両立しています。
ガレージ内には、自転車のホイールを吊るして飾れるディスプレイスペースを設置しました。まるでショーケースのような見せる収納が実現しています。さらに、2階ホールにはバーカウンターを設け、大好きな晩酌時間を仲間と共に楽しめる工夫もあります。
自転車や愛車だけでなく、暮らし全体に「+αの楽しみ」を取り入れたインナーガレージハウスです。趣味と生活が自然につながり、心地よい時間が流れる設計です。
ガレージハウスの費用相場
住宅金融支援機構「2024年度 フラット35利用者調査」によると、注文住宅の坪単価は全国平均で約130万円です。延べ床面積は118.5㎡、所要資金は3,932.1万円が目安とされています。ガレージハウスの場合は、耐震補強や換気・防犯設備などが必要となるため、坪単価で5〜15万円ほど上乗せされるケースが一般的です。
たとえば、30坪前後の延べ床面積なら、建築費用は3,900万〜4,350万円程度が目安です。さらに、電動シャッターや換気設備、防犯カメラを導入すれば、数十万円単位のコストが発生します。
一方で、以下のようにコストを抑える工夫も可能です。
- ガレージを「車1台分+収納程度」に設計すれば、数百万円単位の節約
- シャッターを電動式ではなく手動式にすれば、1基あたり30〜60万円の削減
基本的には、別棟よりも1階の一部にガレージを組み込む方が工事費を抑えやすく、倉庫や趣味室との兼用も効率的です。実績のあるハウスメーカーなら、耐震性を確保しつつ無駄な工事を省けるため、費用と安心のバランスを取りやすくなります。
※参考:2024年度 フラット35利用者調査|住宅金融支援機構
高性能で自由度を併せ持つトヨタホームのガレージハウスで安心の家づくりを
ガレージハウスは、自由度や機能性が高く暮らしを豊かにする間取りです。その一方で、1階部分に大開口部を設ける必要があるため、耐震性については十分な検討が欠かせません。
トヨタホームなら、高い耐震性能を備えた鉄骨住宅により、安心感のあるガレージハウスが実現できます。特にユニット工法はガレージとの相性に優れています。工場で精密につくられたユニットを組み合わせることで、大開口を伴う設計でも耐震性と自由度を両立できるでしょう。
さらに、トヨタホームでは「スマートハウス」と組み合わせた新しいガレージハウスのスタイルも提案しています。エネルギー消費の見える化や外出先からの機器操作なに加え、「クルマde給電」「V2Hスタンド」などを装着することでエネルギーを家と車で共有しながらの生活を実現することができます。
持続可能な生活が求められる今、トヨタホームのガレージハウスは次世代にふさわしい選択肢といえるでしょう。詳しくはカタログ請求、またはお近くの展示場で実例をご確認ください。
トヨタホームのビルトイン/インナーガレージの建築実例はこちら
【全国のトヨタホーム展示場を探す】
https://www.toyotahome.co.jp/s/tenjijo/?ad_cd=hometag
【カタログ請求はこちら】
https://www.toyotahome.co.jp/s/catalog/?ad_cd=hometag
ガレージハウスに関するよくある質問
ガレージハウスの固定資産税はいくらですか?
ガレージハウスの固定資産税は、建物の評価額や所在地によって異なります。ガレージの固定資産税の大まかな目安は「固定資産税評価額×税率」で計算します。固定資産税の税率は自治体によって異なるものの、おおむね1.4%程度です。
そのため、ガレージ部分の建築費が150万円だった場合、その60%程度を評価額の目安とし、そこに標準的な税率1.4%をかけると、年間で約 12,600円 程度になります。最も確実なのは、購入または建設予定の自治体の固定資産税課などに「固定資産税評価証明書」や「課税標準額」を確認することです。
詳しくはこちらを参照ください。
注意!ビルトインガレージに固定資産税がかかるって本当!?詳しく解説
ガレージハウスには何坪必要ですか?
ガレージハウスに必要な坪数は、ガレージに収容する車の台数や車のサイズ、さらに居住スペースの広さによって異なります。一般的に、1台分の車を収容するガレージには約5〜7坪程度が必要です。2台分の車を収容する場合は、10〜14坪程度が目安となります。居住スペースを含めた全体の広さは、家族構成やライフスタイルに応じて設計されるため、具体的な坪数は個別のニーズに合わせて異なります。ガレージハウスを計画する際は、車の出し入れのしやすさや収納スペースも考慮に入れると良いでしょう。
詳しくはこちらを参照ください。
車2台分のガレージハウスを建てる際の注意点!間取りや費用相場も紹介
ガレージハウスを設計する際の注意点は何ですか?
ガレージハウスを設計する際の注意点として、まずは車のサイズに合わせた十分なスペースを確保することが重要です。特に、車の出し入れがスムーズに行えるよう、ガレージの幅や奥行きに余裕を持たせることを心がけましょう。また、ガレージと居住スペースの間には適切な断熱・防音対策を施すことが必要です。さらに、換気設備をしっかりと整え、車の排気ガスや湿気が居住空間に影響を与えないようにすることも大切です。最後に、ガレージを趣味のスペースや作業場として活用する場合は、電源や照明の配置にも注意を払いましょう。これらの点を考慮することで、快適で機能的なガレージハウスを実現できます。
▼関連する記事
ビルトインガレージはメリット多数!設置で気を付けたいポイントも解説
【注文住宅】ビルトインガレージを作るなら間取りはどうする?ポイントを解説
【注文住宅】平屋でビルトインガレージを作るには?30坪の間取りも紹介
おしゃれなビルトインガレージにするには?ポイントや活用方法を紹介
【注文住宅】3階建てビルトインガレージで2台分の駐車スペースを確保しよう
【注文住宅】3階建てのビルトインガレージにするメリット・デメリットは?
3階建てビルトインガレージ、どんな間取りができる?20~40坪を紹介!
2階建てガレージハウスを建てたい!建築費用の目安やおすすめの間取りも紹介
【間取り図あり】ガレージハウス、間取り決めでの注意点は?費用の相場も解説
インナーガレージとは?メリット・デメリットや間取りのポイントを紹介
【50坪台・注文住宅】ビルトインガレージ付きの間取りや費用相場を紹介!
【注文住宅】ビルトインガレージで後悔しがちなケースから対策を立てよう
おしゃれなガレージハウスを建てたい!デザイン性を高めるポイントを紹介
車2台分のガレージハウスを建てる際の注意点!間取りや費用相場も紹介
ビルトインガレージ、建ぺい率と容積率はどう影響する?注文住宅を建てる前に押さえておこう
注意!ビルトインガレージに固定資産税がかかるって本当!?詳しく解説
「インナーガレージ」と「ビルトインガレージ」の違いは?利便性をアップさせるアイデアも紹介
【注文住宅】ビルトインガレージの寸法、幅や高さについて知っておきたい注意点を解説
40坪台のガレージハウスの間取り集!間取り決めのポイントも解説
ビルトインガレージのある3階建て、耐震性は大丈夫?高めるためのポイントを解説
ビルトインガレージ付き注文住宅、2階リビングにするメリットは?デメリットも紹介
【注文住宅】スキップフロア&ビルトインガレージは相性抜群!取り入れる際の注意点も解説
【25~40坪】ビルトインガレージ付き注文住宅の間取りプラン!建築事例から紹介
60坪で建てるビルトインガレージ付き注文住宅!人気の間取り&住まいの実例も紹介





















