新築戸建
TOYOTAHOME SALON

ログイン/新規登録

TOYOTAHOME SALONとは?
WEBでカタログが閲覧できる「デジタルカタログ」、さらには自分のお気に入りを登録できる「ブックマーク機能」など、トヨタホームサロンは、あなたの理想の家づくりをサポートします。
新規登録

アカウントをお持ちではない方

メールアドレスを入力してください

【トヨタホーム見学会】Prime Life Terrace 岡山会場 相談会・セミナー他

DATE 開催期間

2025年11月1日(土) ~ 2025年11月3日(月)

PLACE 場所

岡山県岡山市北区谷万成二丁目81番7

INFORMATION イベント内容

\\ トヨタホーム全国一斉見学会「おうち日和」開催 //

開催期間:2025年11月1日(土)~11月3日(月祝)

全国各地の会場にて、トヨタホームの最新住まいをご体感いただける見学会を開催いたします。

事前WEBご予約のうえ、期間中にご来場いただいたお客様全員に、

『選べる厳選グルメ デジタルギフト3,000円分』をプレゼント!

ご家族で楽しみながら、理想の住まいづくりをご検討いただける特別な3日間。

ぜひこの機会にお近くの会場へお越しくださいませ。

 

PLT岡山会場は、10月下旬に完成モデルハウス2棟を同時にご見学いただけます!

最新の間取りや設備をご体感できます☆

 

未来の暮らしを、実際に見て、感じて、納得できるチャンスです。

今すぐWEB予約をして、最高の住まい体験をしましょう!

  • 外観パース(完成イメージ)

  • 内観LDKパース(完成イメージ)

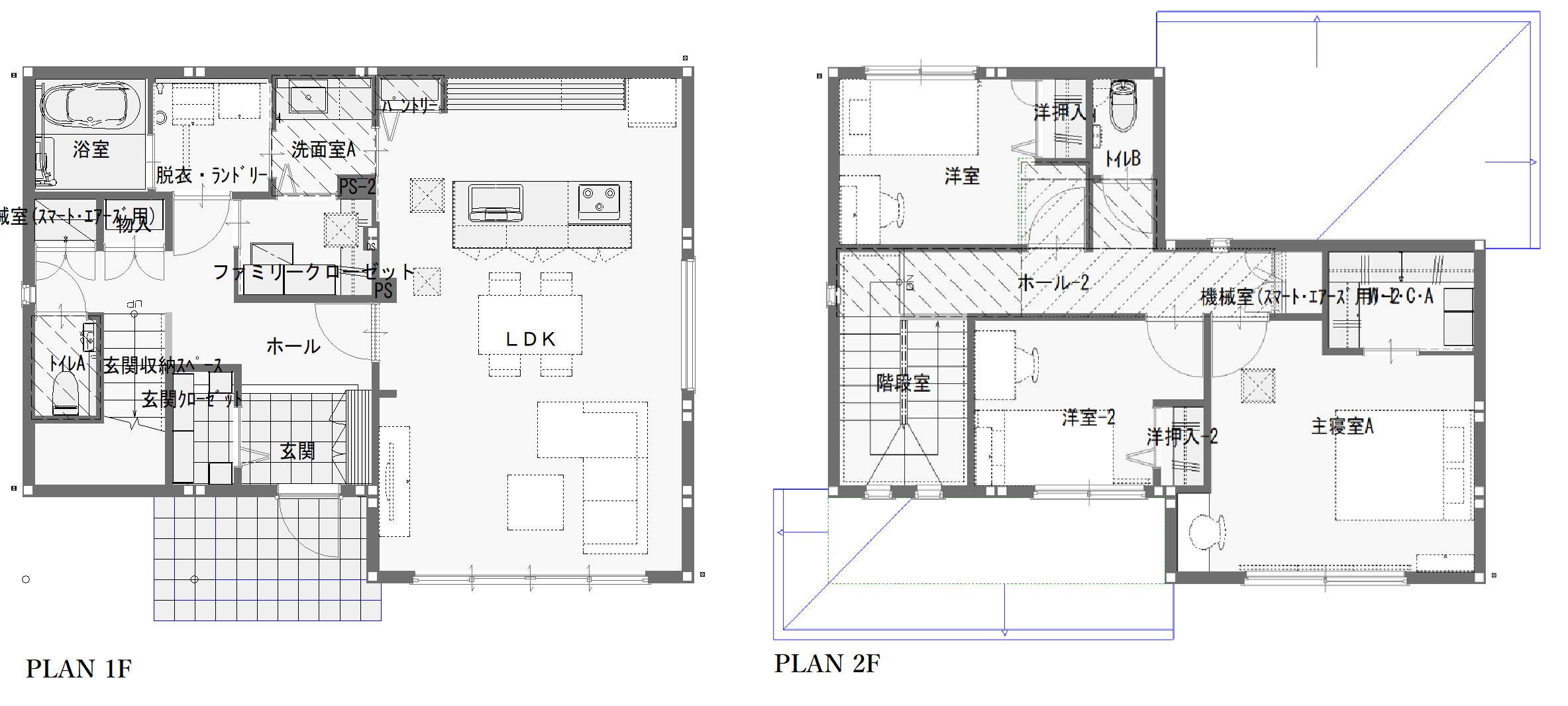
  • PLAN

CONTACT 担当

トヨタホーム岡山株式会社 OHKハウジング展示場

TEL: 086-271-3039

メール: information@th-okayama.jp

担当者: 長尾


トヨタホーム岡山株式会社 イベント事務局

TEL: 086-941-8822

メール: information@th-okayama.jp

PAGE TOP
PAGE TOP