愛着のある場所に住み続けながら、賃貸という新たな価値もプラス。
「賃貸併用」で、資産を賢く活用しませんか。
マイホームを計画するときに、賃貸住宅をプラスすることを考えてみませんか?
収入が増えるだけでなく、相続税などの各種税制、住み心地などでも
たくさんのメリットが得られ、家族の暮らしにうれしいゆとりが生まれます。
都市に住む家族のための新しくて賢い選択です。


立地・環境・暮らしのスタイルに対応した、
さまざまな建て方タイプ。
-
2フロア、一戸建感覚の暮らし
上下階の騒音トラブルが起こりにくいメリットがあります。
-
最上階ワンフロアの暮らし
広々とした最上階で、毎日を伸び伸びと。
屋上を利用した大型バルコニーも計画できます。
-
1階ワンフロアの暮らし
出入りがしやすい住み慣れた1階なら高齢になっても安心。
庭を眺めながら自然を身近に感じられる毎日を。
-
狭小地でもゆとりある暮らし
敷地が小さい狭小地などでは、
自宅部分を2フロアで計画してゆとりの空間に。
※3階が共同住宅の場合、原則として耐火建築物にする必要があります(3階部分が1・2階との共用部分をもたず専用階段を持っている場合、また、各住戸が専用階段を持ち、共用部分がない場合は共同住宅になりません。)
プランニングのゆとり
敷地の特性を確かな価値へと変える、アイデアと技術力。
狭小・変形敷地、周辺環境や斜線制限など、都市の賃貸経営における課題を柔軟な発想と技術力でクリアし、
敷地を最大限有効に活用するプランを実現します。
-
-

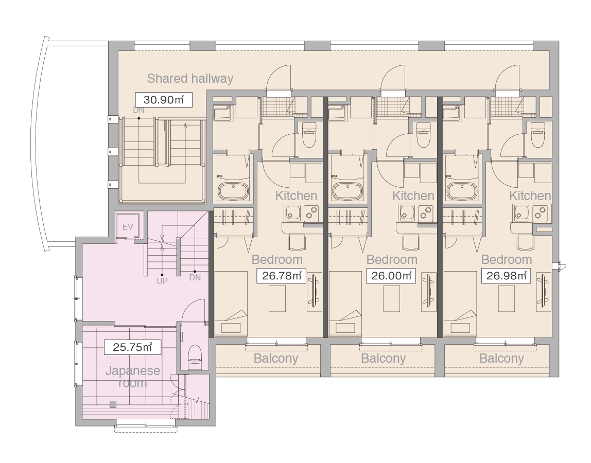
オーナーゾーン(サブフロア)
賃貸ゾーン(1R×3戸) -
学生や単身社会人向けのコンパクトな1R。
対面キッチンが、1R空間に広がりを与えます。
-
-
-

オーナーゾーン(屋上フロア) -
屋上を利用した大型バルコニー。
プライバシーを保ちながら、夕涼みや日光浴、また天体観測など、さまざまな楽しみが広がります。
-
-
-

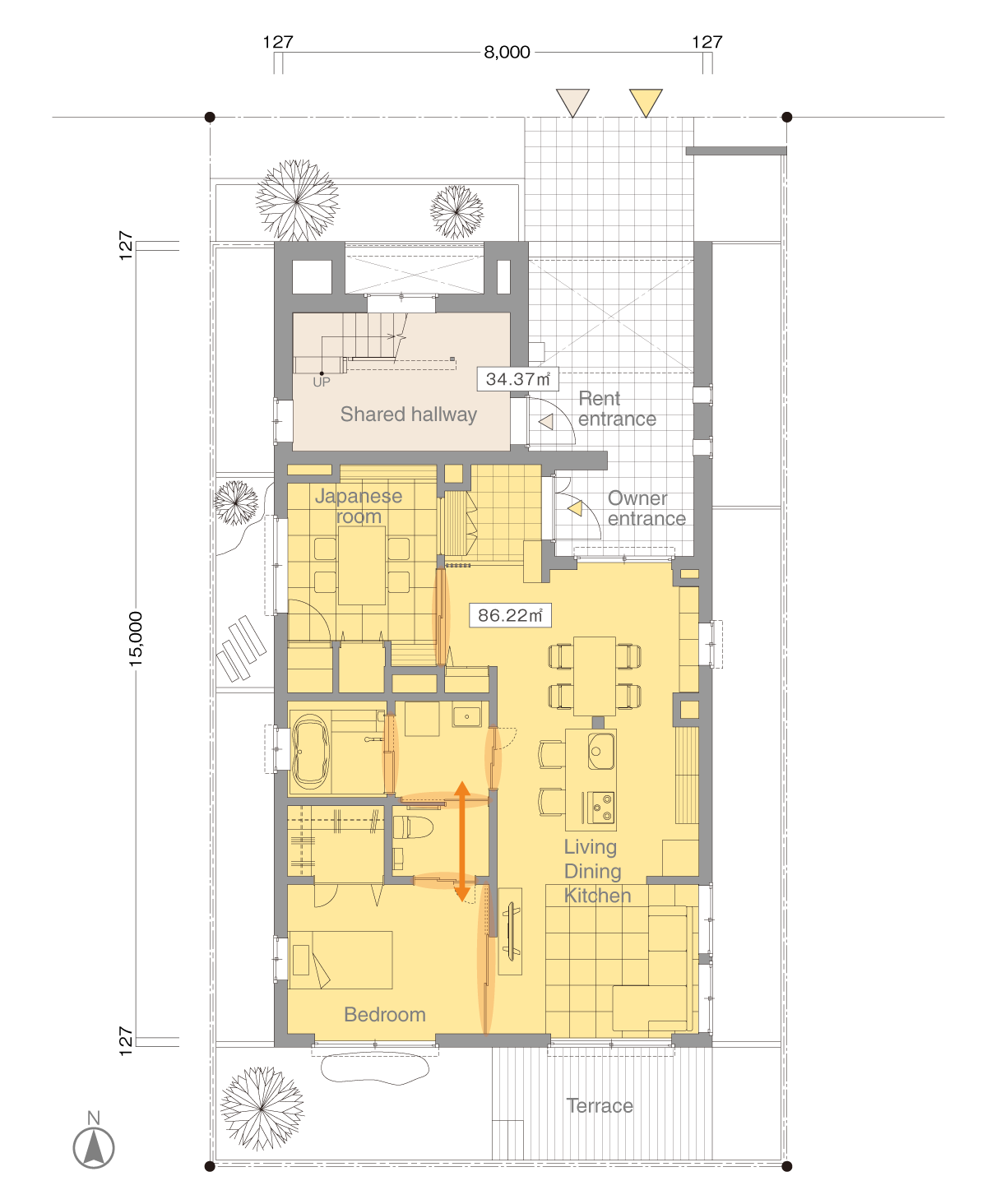
アプローチ - オーナー様と入居者様のアプローチを明確に分けることで、プライバシーを確保できます。
-
オーナーゾーン(エントランス)
賃貸ゾーン(1LDK+マルチスペース) -
多目的に活用できる広い土間空間がある賃貸プラン。
自転車を置いたり、DIYの作業スペースとして利用するなど、趣味を楽しむ入居者に人気のプランです。
-
-
-

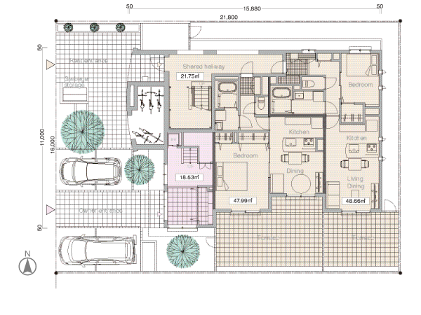
オーナーゾーン(サブフロア)
賃貸ゾーン(1LDK+マルチスペース) -
LDKとつながったマルチスペースは、在宅ワークや趣味を楽しむスペースに最適。
広いバルコニーに面した開放感のある空間です。
-
-
-

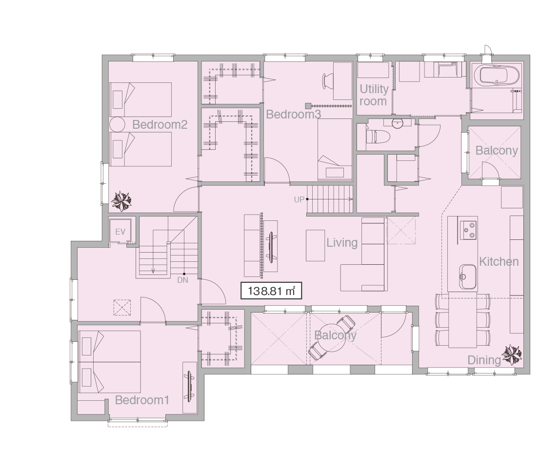
オーナーゾーン(メインフロア) -
最上階ワンフロアに、快適かつ便利に暮らすための工夫を盛り込んだプラン。
寝室とトイレやバスルームを便利な動線で結び、シニアライフのストレスを最小限に抑えます。
大きなバルコニーに面した開放感のあるLDKでご夫婦2人がゆったりとお過ごしいただけます。
-
-
-

オーナーゾーン(ワンフロア) -
各部屋の出入口には、引戸や間口スペースが充分に確保できるひきドアを採用。
万一介護が必要になった際でも負担の少ない暮らしを可能にします。
広くオープンなダイニング・キッチンや和室は来客時のくつろぎのひとときに役立ちます。
-
-
-

賃貸ゾーン(1LDK×2戸) -
収納プランが異なる2タイプの1LDK。
ウォークインクローゼットの配置は身支度に便利な洗面室脇プランと、お出かけ時の荷物の取り出しに便利な玄関脇プランから選べます。
入居者様の生活スタイルに寄り添った、暮らしやすい室内空間です。
-
-
-

賃貸ゾーン(1LDK×2戸)
-
空間のゆとり
EST工法だから実現できる、大空間・大開口。
伸び伸びと開放感のある暮らしが楽しめます。
バルコニーに囲まれたLDKは、光が降り注ぎいつも気持ちよく過ごせる空間。
プライバシーを気にせず、季節の変化が楽しめます。
自然の光と風を楽しめるテラス。
賃貸住宅には珍しい贅沢な空間は、大きな付加価値となります。
大きな窓に面したマルチスペースのある賃貸空間。
在宅ワークのスペースとしても趣味の空間としても、心地いい空間です。
デザインのゆとり
オーナー様の誇りであり、入居者様の喜びともなる、
洗練された外観デザイン。
スタイリッシュでモダンな外観デザイン。
外観を個性的に仕上げることで、自宅としても賃貸住宅としても魅力を高めています。
優美なカーブを描く外壁が、街並みに調和しながら印象的な表情をつくります。
カーブドウォールの内側は、スリット窓から柔らかな光がこぼれ、表情豊かな空間をつくります。個性的な空間デザインを好む入居者に人気です。
プランニングのゆとり
敷地の特性を確かな価値へと変える、
アイデアと技術力。
狭小・変形敷地、周辺環境や斜線制限など、都市の賃貸経営における課題を柔軟な発想と技術力でクリアし、敷地を最大限有効に活用するプランを実現します。
-

学生や単身社会人向けのコンパクトな1R。
対面キッチンが、1R空間に広がりを与えます。
-

屋上を利用した大型バルコニー。
プライバシーを保ちながら、夕涼みや日光浴、また天体観測など、さまざまな楽しみが広がります。
-

オーナー様と入居者様のアプローチを明確に分けることで、プライバシーを確保できます。

多目的に活用できる広い土間空間がある賃貸プラン。
自転車を置いたり、DIYの作業スペースとして利用するなど、趣味を楽しむ入居者に人気のプランです。
-

LDKとつながったマルチスペースは、在宅ワークや趣味を楽しむスペースに最適。
広いバルコニーに面した開放感のある空間です。
-

最上階ワンフロアに、快適かつ便利に暮らすための工夫を盛り込んだプラン。
寝室とトイレやバスルームを便利な動線で結び、シニアライフのストレスを最小限に抑えます。
大きなバルコニーに面した開放感のあるLDKでご夫婦2人がゆったりとお過ごしいただけます。
-

各部屋の出入口には、引戸や間口スペースが充分に確保できるひきドアを採用。
万一介護が必要になった際でも負担の少ない暮らしを可能にします。
広くオープンなダイニング・キッチンや和室は来客時のくつろぎのひとときに役立ちます。
-

収納プランが異なる2タイプの1LDK。
ウォークインクローゼットの配置は身支度に便利な洗面室脇プランと、お出かけ時の荷物の取り出しに便利な玄関脇プランから選べます。
入居者様の生活スタイルに寄り添った、暮らしやすい室内空間です。
-

空間のゆとり
EST工法だから実現できる、大空間・大開口。
伸び伸びと開放感のある暮らしが楽しめます。
バルコニーに囲まれたLDKは、光が降り注ぎいつも気持ちよく過ごせる空間。
プライバシーを気にせず、季節の変化が楽しめます。
自然の光と風を楽しめるテラス。賃貸住宅には珍しい贅沢な空間は、大きな付加価値となります。
大きな窓に面したマルチスペースのある賃貸空間。在宅ワークのスペースとしても趣味の空間としても、心地いい空間です。
デザインのゆとり
オーナー様の誇りであり、入居者様の喜びともなる、
洗練された外観デザイン。
スタイリッシュでモダンな外観デザイン。
外観を個性的に仕上げることで、自宅としても賃貸住宅としても魅力を高めています。
優美なカーブを描く外壁が、街並みに調和しながら印象的な表情をつくります。
カーブドウォールの内側は、スリット窓から柔らかな光がこぼれ、表情豊かな空間をつくります。個性的な空間デザインを好む入居者に人気です。

賃貸経営の
お問い合わせ・個別相談
建築対応エリアは販売店によって異なります。
詳しくはお問い合わせください。













