すべての空間がワンフロアでつながる、平屋ならではの豊かな暮らし。 シンセ・ピアーナ
COMMITMENT お客様のこだわり
どこからでもアクセスしやすく、家事もスムーズ。
フロア全体が見渡せる、オープンキッチン。リビングやダイニングとの距離が近いので、料理や後片付けをしている時でも自然に会話することができます。キッチンが家の中心に配置されているため、移動もスムーズ。玄関や勝手口との距離も近く、買い物から帰ってきた時は食品などをサッと運び入れることができます。
趣味や来客時など、使い勝手の良いひと部屋。
「他の部屋からすぐに行き来できるように」との考えから、リビングの隣に和室を配置。普段はふすまを開けて、リビングと一体のスペースとして使っています。息子さんご一家が帰省した際などは、この和室が宿泊スペースに。趣味の時間や来客時などさまざまな場面に使える、便利なひと部屋です。
防犯ブラインドシャッターで、暑い夏の夜も快適に。
寝室の窓に設置した、防犯ブラインドシャッター「エアリーガード」。羽根(スラット)を開けた状態にしておけば、防犯性を保ちながら自然の心地よい風を取り入れることができます。エアリーガードを効果的に使うことで、夏の夜でも就寝時のエアコン使用を減らすことが可能に。毎日の健康維持にも役立ちます。
FAVORITE お気に入りの場所 [リビング]
O様ご夫妻が一日の中でもっとも長い時間を過ごす、リビング。「二人で話をしながら、本を読んだりテレビを見たり、のんびりと過ごすことが多いですね」とご主人。快適さに満足されているご様子です。窓の外に広がる庭の景色も、リビングで味わえる楽しみのひとつ。桜が美しく咲く季節を、毎年心待ちにされています。
GALLERY フォトギャラリー
OWNER 兵庫県/O様邸
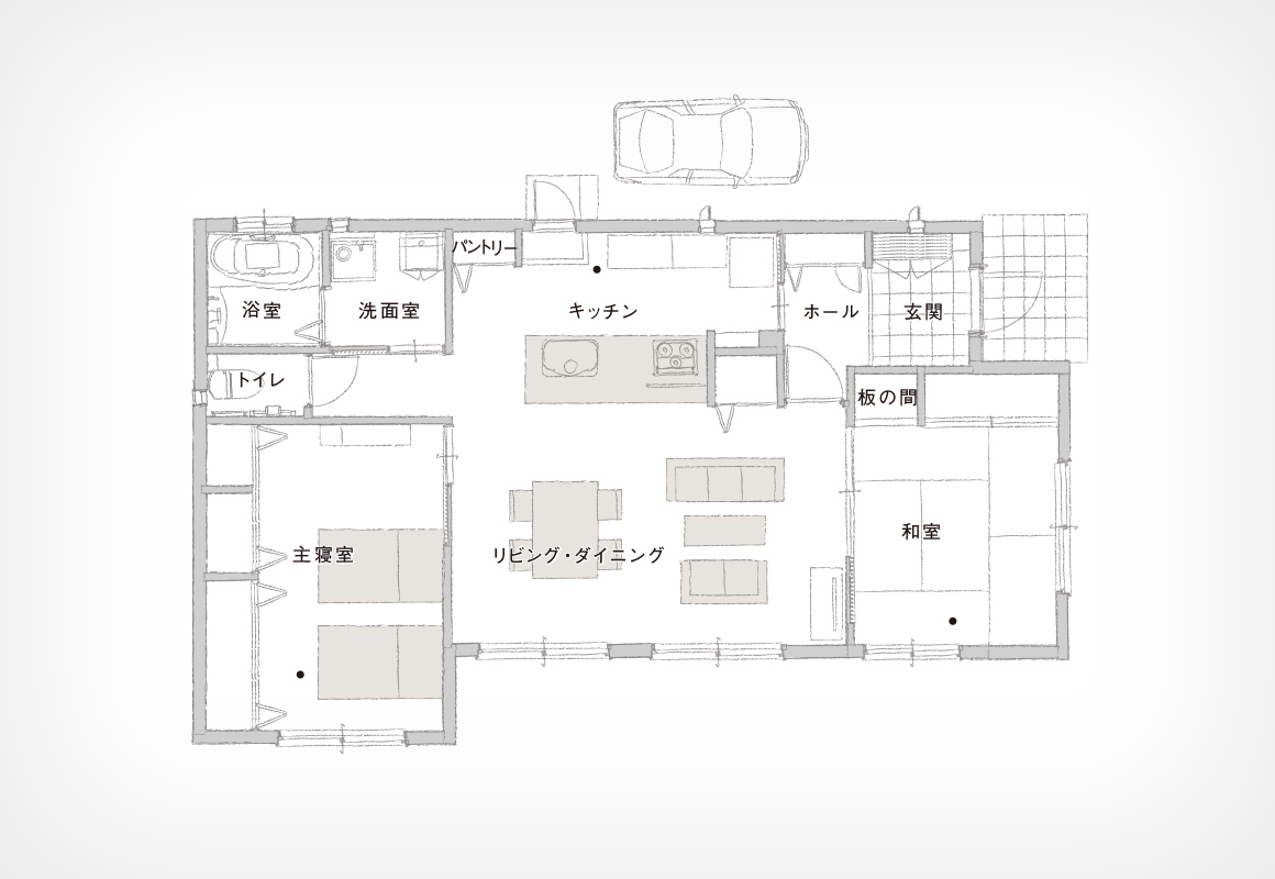
移動しやすいコンパクトな導線設計。
ゆったりとした佇まいが印象的な、O様の平屋建て住宅。ご夫婦二人の今後の暮らしを考えて、長年生活した2階建て住宅からの建て替えを決めました。間取りを検討する際、特に重視したのは、コンパクトな動線設計です。生活の中心であるリビングを囲むように寝室や和室、水まわりスペースを配置し、少ない移動距離で行き来できるよう配慮しました。また、ご夫婦間のコミュニケーションが取りやすいことも、すべての空間がワンフロアでつながる平屋ならではのうれしさです。必要な時にすぐに言葉を交わせる快適さと安心感を、ご夫婦ともに実感されています。
FLOOR PLAN 間取り
- 敷地面積
- 356.26㎡107.77坪
- 延床面積
- 76.74㎡
- 1階床面積
- 76.74㎡
CONTACT 担当
- トヨタホーム近畿(株)
- 営業スタッフ:慎 勲宰さん
設計担当:中島 紀子さん
インテリア担当:西井 ゆかりさん - TEL : 078-991-6311





