賃貸住宅
TOYOTAHOME SALON

ログイン/新規登録

TOYOTAHOME SALONとは?
WEBでカタログが閲覧できる「デジタルカタログ」、さらには自分のお気に入りを登録できる「ブックマーク機能」など、トヨタホームサロンは、あなたの理想の家づくりをサポートします。
新規登録

アカウントをお持ちではない方

メールアドレスを入力してください

相続した土地を守るために安定経営を実現!
落ち着いた戸建風の佇まいで全2戸を確保

PROPERTY INFORMATION 物件概要

所在地
愛知県日進市
規模
1棟2戸
敷地面積
165.00㎡
延床面積
136.11㎡
間取り
2LDK
従前の用途
その他

GALLELY 画像ギャラリー

区画整理地の街並みに調和する、戸建風の佇まいが魅力の2階建の賃貸です。クローズ外構で安心感のあるセキュリティを実現し、各世帯のプライバシーにも配慮。新婚世帯をターゲットに2LDK全2戸を確保しました。

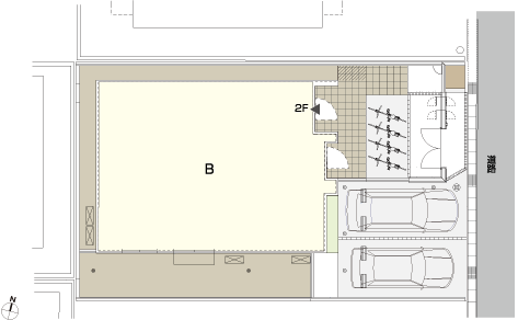
土地利用計画

50坪の敷地を有効活用した2階建賃貸住宅

区画整理地の街並みに調和する、戸建風の佇まいが魅力の2階建の賃貸です。クローズ外構で安心感のあるセキュリティを実現し、各世帯のプライバシーにも配慮。新婚世帯をターゲットに2LDK全2戸を確保しました。

  • CATALOG 賃貸住宅カタログ

    賃貸住宅について詳しく知れる賃貸住宅カタログ
  • CONTACT お問い合わせ

    賃貸経営のお問い合わせ個別相談はこちら
PAGE TOP
PAGE TOP